Zum Inhalt springen

Die zu bebauenden Parzellen liegen im Herzen von Wolhusen, direkt am Rössliplatz. Westlich des Platzes liegt der markante Strassenkreisel, welcher räumlich dreiseitig von fünfgeschossigen Häusern flankiert wird. Der Kreisel nimmt die drei Hauptstrassen, welche von Luzern, dem Entlebuch und Willisau kommend Wolhusen erschliessen, auf. Die Kombination von Strassenräumen, Häuserzeilen und Platz hat etwas Städtisches, was sich auch im reichhaltigen Geschäftsangebot widerspiegelt.

Der Rössliplatz soll zukünftig multifunktional nutzbar sein. Tagsüber als PW-Parkplatz und an den Wochenenden sowie am Abend als Dorfplatz mit unterschiedlichsten Nutzungen. Die netzartige Bodengrafik reflektiert diesen Anspruch. Eine neue, zusätzliche Fussgängerverbindung zwischen der bestehenden Raiffeisenbank und dem neuen Wohn- und Geschäftshaus soll den Platz zusätzlich aufwerten und komplettieren.

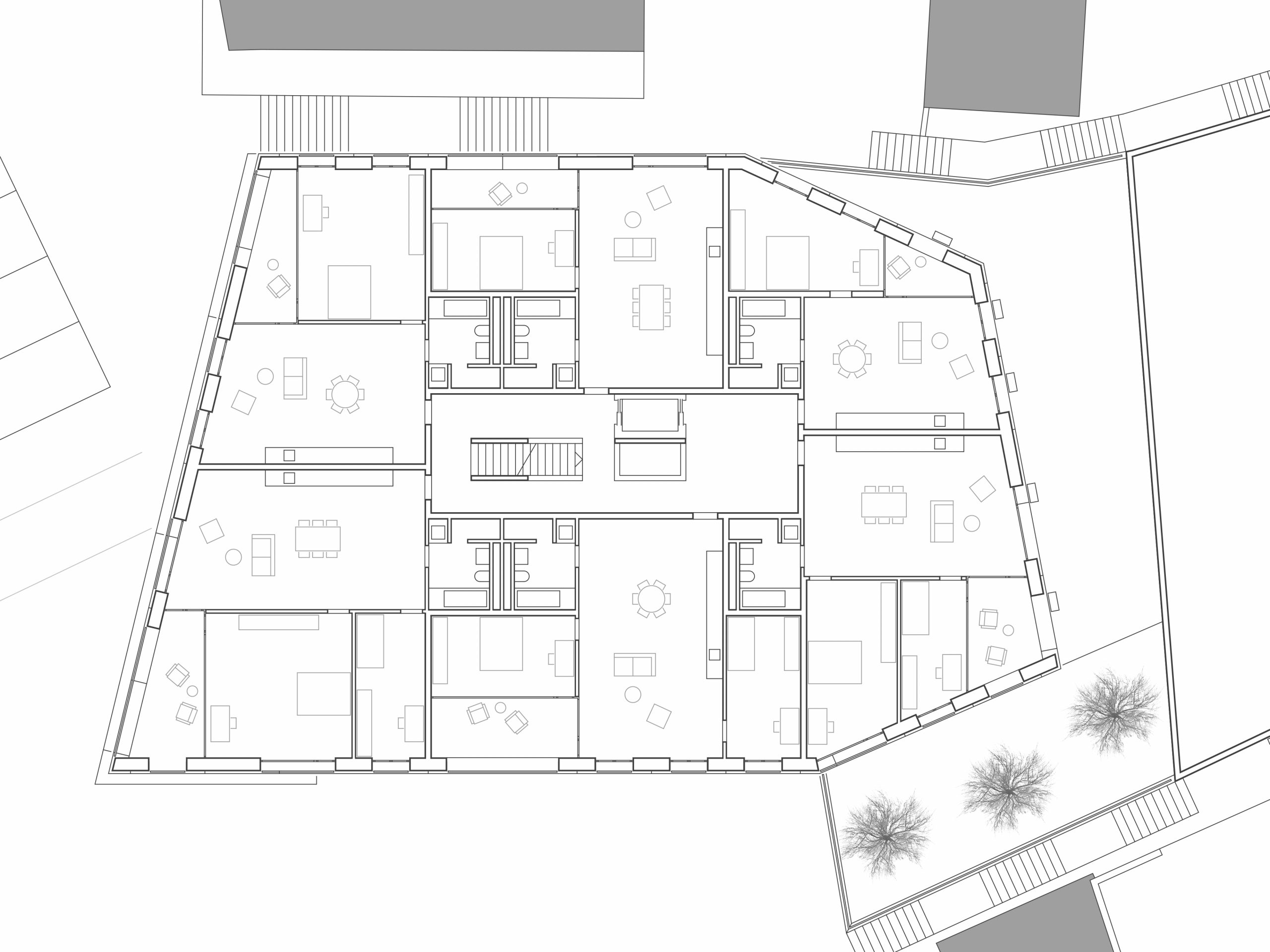
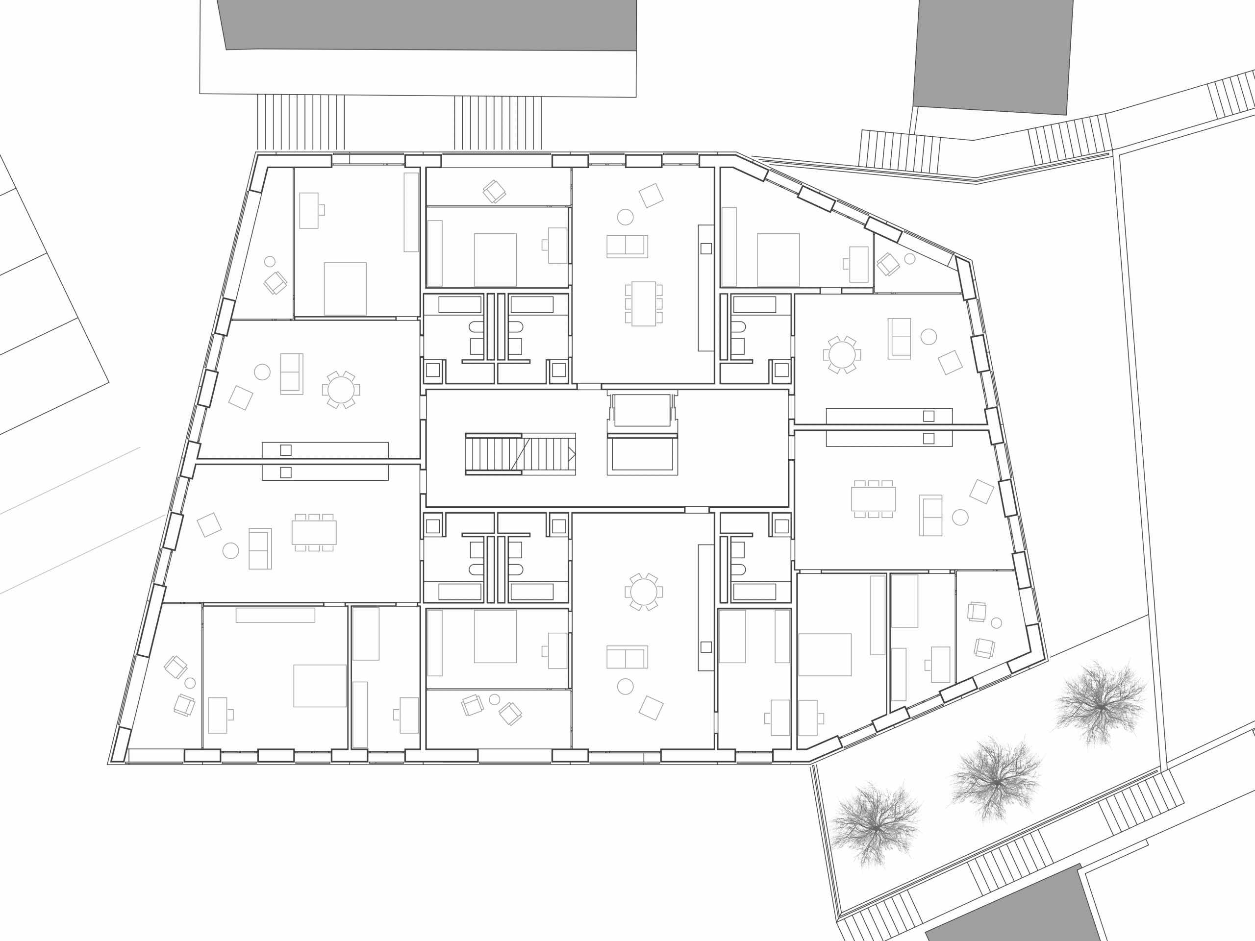
Neben der Fussgänger-Erschliesssung für die vier Obergeschosse sind im Parterre zwei Ladenflächen von 140 m2 und 190 m2 für Take-away und Bäckerei mit Bistro vorgesehen. Im 1. Obergeschoss gegen den Rössliplatz ist eine Büro- oder Praxisfläche von 190 m2 geplant. Weiter sind neben einem grossen Veloraum gegen Nordwesten ein Sozialraum für die beiden Ladenflächen im Erdgeschoss und eine Autoparkierung, mit 15 Parkplätzen im 1. Obergeschoss untergebracht. Die hier bereitgestellten Parkflächen werden über den Blumenweg erschlossen. In den weiteren drei Obergeschossen sind unterschiedlich grosse 2 ½- und 3 ½-Zimmerwohnungen geplant. Durch die modular aufgebaute Fassadenstruktur, deren Achsmass 140 cm beträgt, sind unterschiedliche Öffnungsbreiten in der Fassade möglich, ohne dass die Grundstruktur durchbrochen werden muss.

Die Fassaden sind durchgängig mit Betonelementen verkleidet. Das Parterre ist zum Rössliplatz hin mit einem markanten Vordach ausgezeichnet, um der Adressierung bezüglich Nutzung und Lage gerecht zu werden. Die weiteren Geschosse sind mit einem leicht vorstehenden Betongesims subtil voneinander abgegrenzt, die Gebäudehöhe wird dadurch horizontal gegliedert.

Das Wohn- und Geschäftshaus «Rössliplatz» tritt gegenüber Südwesten viergeschossig in Erscheinung und schliesst so den Platz und Strassenraum mit Kreisel städtebaulich angemessen ab. In Richtung Gütsch-Hang nimmt die Gebäudehöhe kontinuierlich ab, bis das Haus an der Ostfassade nur noch zweigeschossig sichtbar ist und sich nahtlos in die bestehende Einfamilienhauszone integriert.

Situation
01 - Situation
Erdgeschoss
02 - Erdgeschoss
1. Obergeschoss
03 - 1. Obergeschoss
2. Obergeschoss
04 - 2. Obergeschoss
3. Obergeschoss
05 - 3. Obergeschoss
4. Obergeschoss
06 - 4. Obergeschoss
Schnitt
07 - Schnitt
Südostfassade
08 - Südostfassade
Südwestfassade
09 - Südwestfassade
Nordwestfassade
10 - Nordwestfassade
Nordostfassade
11 - Nordostfassade