Zum Inhalt springen

Projektbeschrieb
Im Spätsommer 2003 schrieb die Einwohnergemeinde Malters für die Sanierung und Erweiterung des Schulhauses «Bündtmättli II» eine Honorarsubmission mit Ideenskizze aus. Die Aufgabenstellung umfasste neben der Sanierung des bestehenden Schulhauses eine Vergrösserung desselben um drei Klassenzimmer mit Gruppenräumen sowie um ein Lehrerzimmer, Vorbereitungs- und Nebenräume.
Durch einen Anbau im Hochparterre konnte der zusätzlich benötigte Raum geschaffen und die geforderte, gedeckte Pausenhalle im Tiefparterre realisiert werden. Der L-förmige, eingeschossige Körper auf Stützen umfasst das bestehende Schulhaus «Bündtmättli II» auf zwei Seiten. Das formal zurückhaltende Volumen des Anbaus ergänzt das 1933 gebaute Schulhaus adequat.

Im Tiefparterre sind die Zimmer für Gestaltung. Die acht Schulzimmer befinden sich im Hochparterre und im Obergeschoss. Die Gruppenräume sind auf verschiedenen Etagen verteilt und ergänzen damit das Raumangebot für den Schulunterricht. Mit dem Singsaal unter dem abgeschrägten Dach hat das Schulhaus einen Raum für grössere Veranstaltungen. Über der Turnhalle befindet sich die Bibliothek. Sie ist vom Treppenhaus her über eine grosse Glastüre erschlossen – ein Schaufenster für Leseratten.

Erschliessung
Das Schulhaus mit Anbau ist über den Haupteingang an der Ecke Turnhalle – Schulhaus und den Eingang am Ende des Korridors im Tiefparterre erschlossen. Über das bestehende Treppenhaus nach unten, gelangt man zur grossflächig verglasten Erschliessung des Tiefparterres. Diese beheizte Vorzone und die gedeckte Pausenhalle ist an verregneten Tagen ein Spielplatz und zugleich Aussenraum für den Werkunterricht. Am Ende des Korridors verbindet die neue Treppe die Werkräume und die gedeckte Pausenhalle mit den Klassenzimmern im Hochparterre. Hier öffnet sich der Korridor und ein Oblichtband taucht die Schulzimmervorzone in helles und freundliches Zenitlicht.

Schulzimmer
Die Garderoben ragen aus der Schulzimmerwand in den Korridor hinein. Sie durchstossen die Schulzimmerwand und sind das multifunktionale Möbel in den Schulzimmern. Ein Rahmen in kräftigem Grau umfasst den Schulwandbrunnen und die vier schiebbaren Whiteboards mit Bücherreagal. Die Schrankfront mit Arbeitsfläche und die Ablagefläche vor den Fenster in einem helleren Grau sind die weiteren festen Einrichtungen in allen Schulzimmern.

Farben
Mit dem Farbkonzept von Jörg Niederberger erhielt das Schulhaus «Bündtmättli II» seine «Kunst am Bau». Ein Farbspiel in fein nuanciertem Gelb unterstreicht das Licht- und Schattenspiel des Tageslichtes. Jede Fassade ist subtil abgetönt. Aus dieser Spannung heraus wächst eine Einheit, die die vielen verschiedenen Gebäudevolumen zu einem neuen Ganzen verbinden.

Im Haupttreppenhaus überrascht ein rotlasiertes Treppenauge, die «Lebensader» des Schulhauses. Sie windet sich im mit schwarzem Terrazzoboden belegten Treppenhaus über alle Geschosse bis ins Dach. Das einfallende Licht projiziert das Rot an die weissen Wände und füllt den Raum mit Energie. Vom Treppenhaus aus führt die Schüler/innen ein neuer schwarzer Linoleumboden durch die Korridore zu den Schulzimmern. Dort laden der in orange gehaltene Marmoleumboden und die feinen Grautöne zum Lernen ein. Wie an der Fassade bindet auch im Gebäudeinnern das Farbkonzept die bestehenden und neuen Gebäudeteilen zusammen.

Text: August Keller, Schnieper Keller Architekten

Haupteingang
01 - Haupteingang
Pausenplatz Südost
02 - Pausenplatz Südost
Neuer Eingang Tiefparterre
03 - Neuer Eingang Tiefparterre
Südfassade Erweiterung
04 - Südfassade Erweiterung
Südwestfassade
05 - Südwestfassade
Südfassade Erweiterung
06 - Südfassade Erweiterung
Südwestfassade Pausenhalle
07 - Südwestfassade Pausenhalle
Pausenhalle Treppe
08 - Pausenhalle Treppe
Treppe Tiefparterre
09 - Treppe Tiefparterre
Korridor Hochparterre
10 - Korridor Hochparterre
Oblichter Korridor Hochparterre
11 - Oblichter Korridor Hochparterre
Brüstung neue Treppe TP-HP
12 - Brüstung neue Treppe TP-HP
Korridor Tiefparterre
13 - Korridor Tiefparterre
Haupttreppe
14 - Haupttreppe
Waschtisch WC-Anlagen
15 - Waschtisch WC-Anlagen
Schulzimmer I
16 - Schulzimmer I
Schulzimmer II
17 - Schulzimmer II
Erweiterung
18 - Erweiterung
Best. Schulhaus
19 - Best. Schulhaus
Textiles Gestalten
20 - Textiles Gestalten
Werken
21 - Werken
Lehrerzimmer
22 - Lehrerzimmer
Lehrerzimmer Teeküche
23 - Lehrerzimmer Teeküche
Lehrerzimmer Archiv
24 - Lehrerzimmer Archiv
Büro Schulleiter
25 - Büro Schulleiter

Fotos: Marco Homberger, Luzern †

Situation
01 - Situation
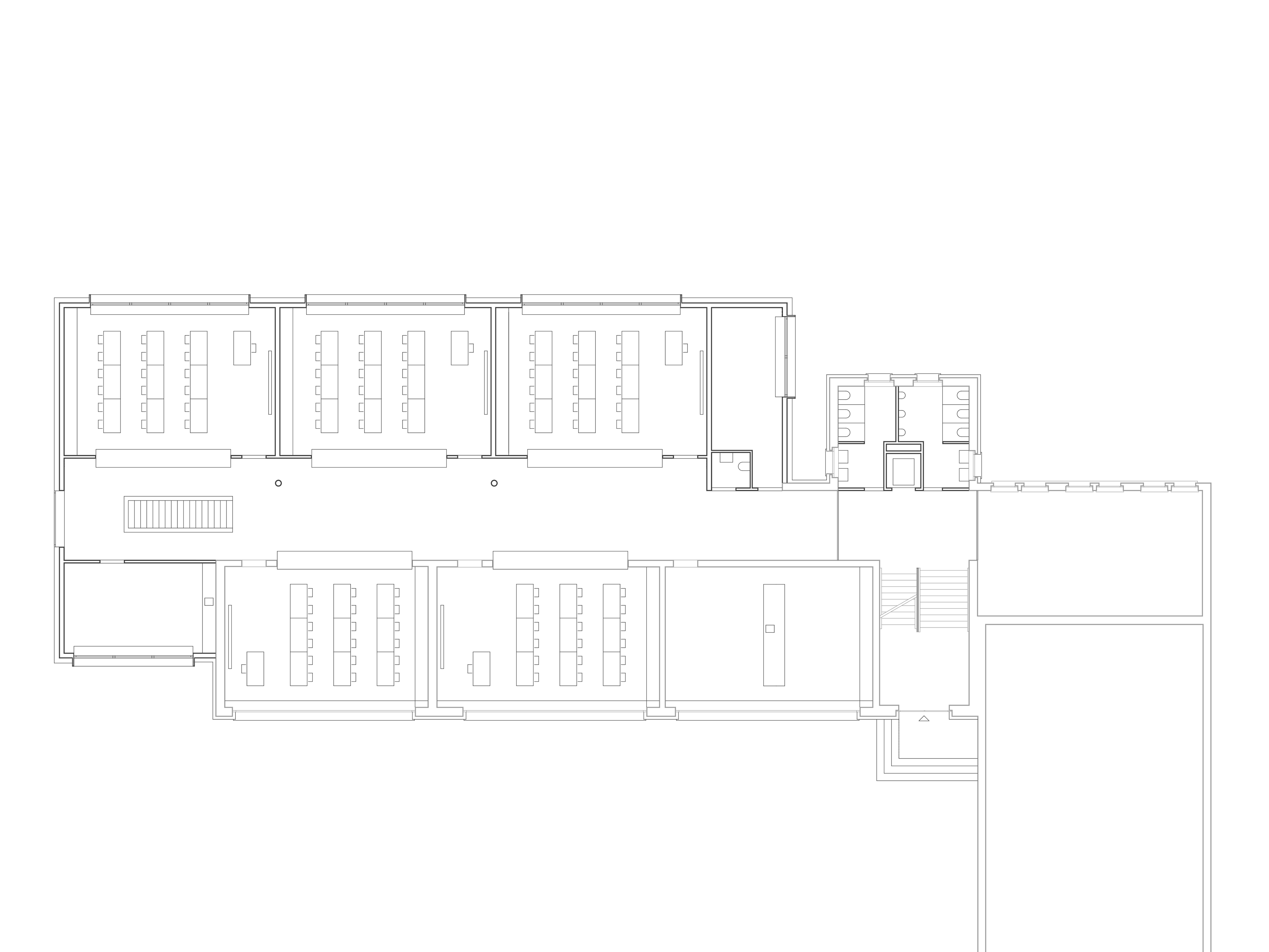
Tiefparterre
02 - Tiefparterre
Hochparterre
03 - Hochparterre
Obergeschoss
04 - Obergeschoss
Dachgeschoss
05 - Dachgeschoss
Südwestfassade
06 - Südwestfassade
Nordwestfassade
07 - Nordwestfassade
Fassaden
08 - Fassaden