Zum Inhalt springen

Der Umbau der 5 ½ Zimmer-Attikawohnung im Gemeindehaus von Eschenbach / Luzern ist bestimmt vom Gedanken einer Klärung von Raumprogramm und architektonischer Form.

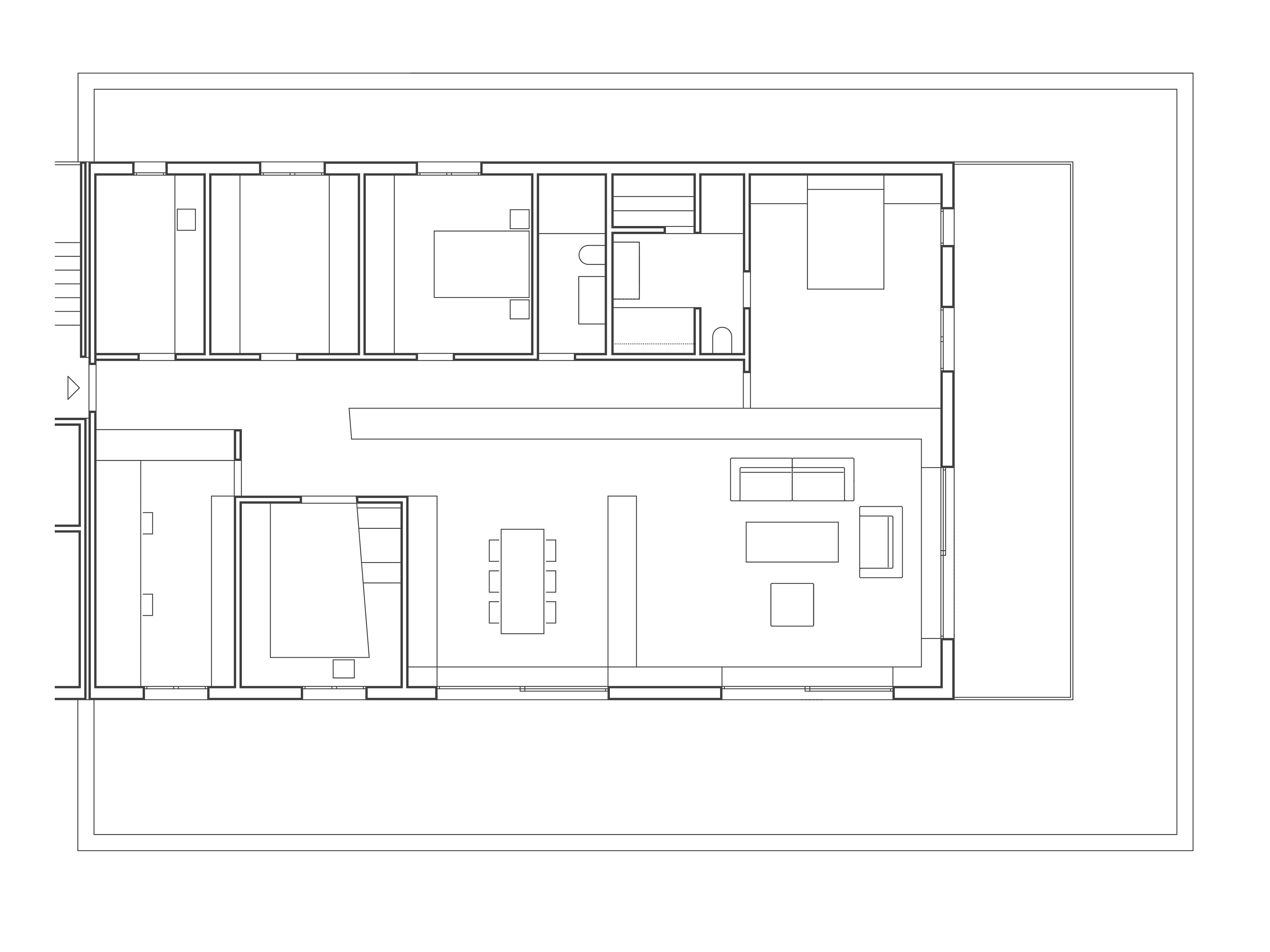
Aus dem von einem Oblicht erhellten Entrée eröffnet sich nach Osten und Süden eine grosszügige, offene Folge von Ess- und Wohnbereich, während die Schlafräume – von einer Schiebetür abgeschirmt – entlang eines Korridors auf der Nordostseite aufgereiht sind. Das Rückgrat zwischen beiden Teilen bildet eine acht Meter lange, sich grösstenteils zum Korridor hin öffnende Schrankwand, in die auf der Wohnseite Aussparungen für Büchernischen und ein Cheminée eingeschnitten sind. Um den Eingangsbereich der Attikawohnung gruppieren sich die Nutzräume: Büro, Küche, Waschküche und Schrankraum. Auch in diesen Nebenbereichen wurde grosser Wert auf funktionsbetonte Ruhe gelegt: vornehm präsentieren sich die Küchenkästen und -armaturen in Weiss, Grau und Chromstahl. Analog zur wandbildenden Schrankfront im Wohnbereich ist auch hier ein Essbereich nicht in den Raum hinausgezogen worden; vielmehr wurde er als behagliche Frühstücksnische in die Gesamtmöblierung eingelassen. Der Klarheit des Raumprogramms entsprechen hochwertige Materialisierungen. Durch alle Räume zieht sich ein fugenloser anthrazitfarbener Polyurethan-Bodenbelag.

Ein sideboardhoher Korpus als Zonierungselement zwischen Wohn- und Essbereich ebenso wie die eingebauten Schrankfronten sind in mattweissem Schleiflack ausgeführt. Alle anderen Wände sind weiss verputzt, und mittels durchgängiger Schattenfugen, anstelle Sockelleisten, scheinen sie über dem dunklen Boden leicht zu schweben. Beruhigend geerdet muten demgegenüber die beiden Nasszellen an: Der Polyurethan-Bodenbelag in Anthrazit wird von Duschenrosten in hellgrauem Sipo-Holz ergänzt, während die weiss/gelbgrün gestrichenen Wände in glattem Zementkalkputz ausgeführt sind.

Schnörkellosigkeit und zeitlose Eleganz prägen das Interieur der repräsentativen Attikawohnung, aus der ein Wintergarten entlang der Ostfassade zu einer die Wohnung dreiseitig umlaufenden Dachterrasse überleitet. Wurden einem bereits durch die grosszügig bemessenen Fenster erste Postkartenblicke auf die barocke Dorfkirche und Kloster mit Rigi im Hintergrund gewährt, so weitet sich der Blick beim Hinaustreten auf diese kiesbedeckten Aussenplattformen ungehindert über das ganze Reusstal.

Text: André Rogger, Basel

Publikationen

Oblicht Entree
01 - Oblicht Entree
Entree mit Oblicht
02 - Entree mit Oblicht
Nische Bucherregal
03 - Nische Bucherregal
Wohnen
04 - Wohnen
Klosterkirche Eschenbach
05 - Klosterkirche Eschenbach
Cheminée
06 - Cheminée
Küche
07 - Küche
Dusche
08 - Dusche
Bad / Sauna
09 - Bad / Sauna
Schlafzimmer
10 - Schlafzimmer

Titelfoto: Bruno Helbling, Zürich  |  Fotos Nr. 1 / 6 / 8 / 9 / 10: Bruno Helbling, Zürich  |  Fotos Nr. 2 / 3 / 4 / 5 / 7: Marco Homberger, Luzern †

Situation
01 - Situation
Grundriss neu
02 - Grundriss neu
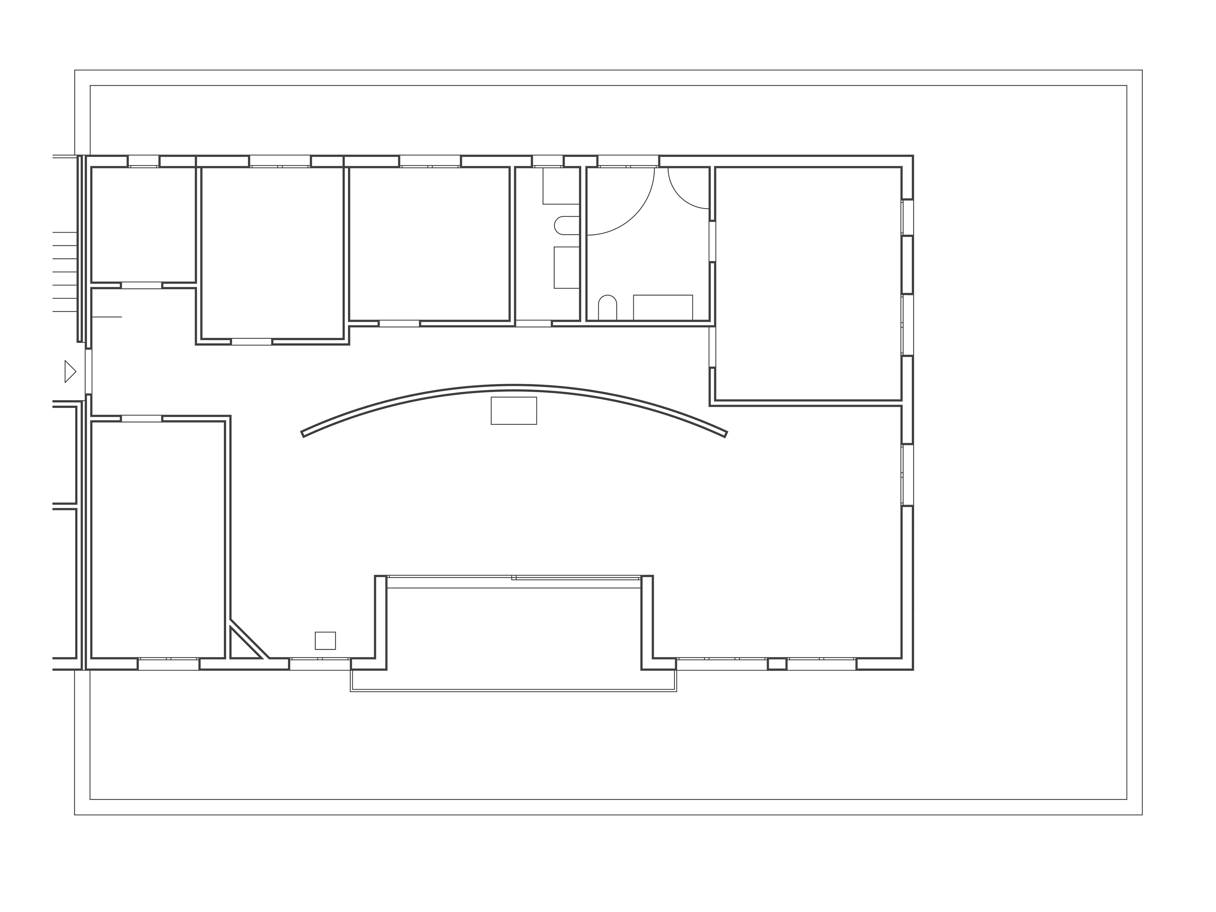
Grundriss alt
03 - Grundriss alt