Zum Inhalt springen

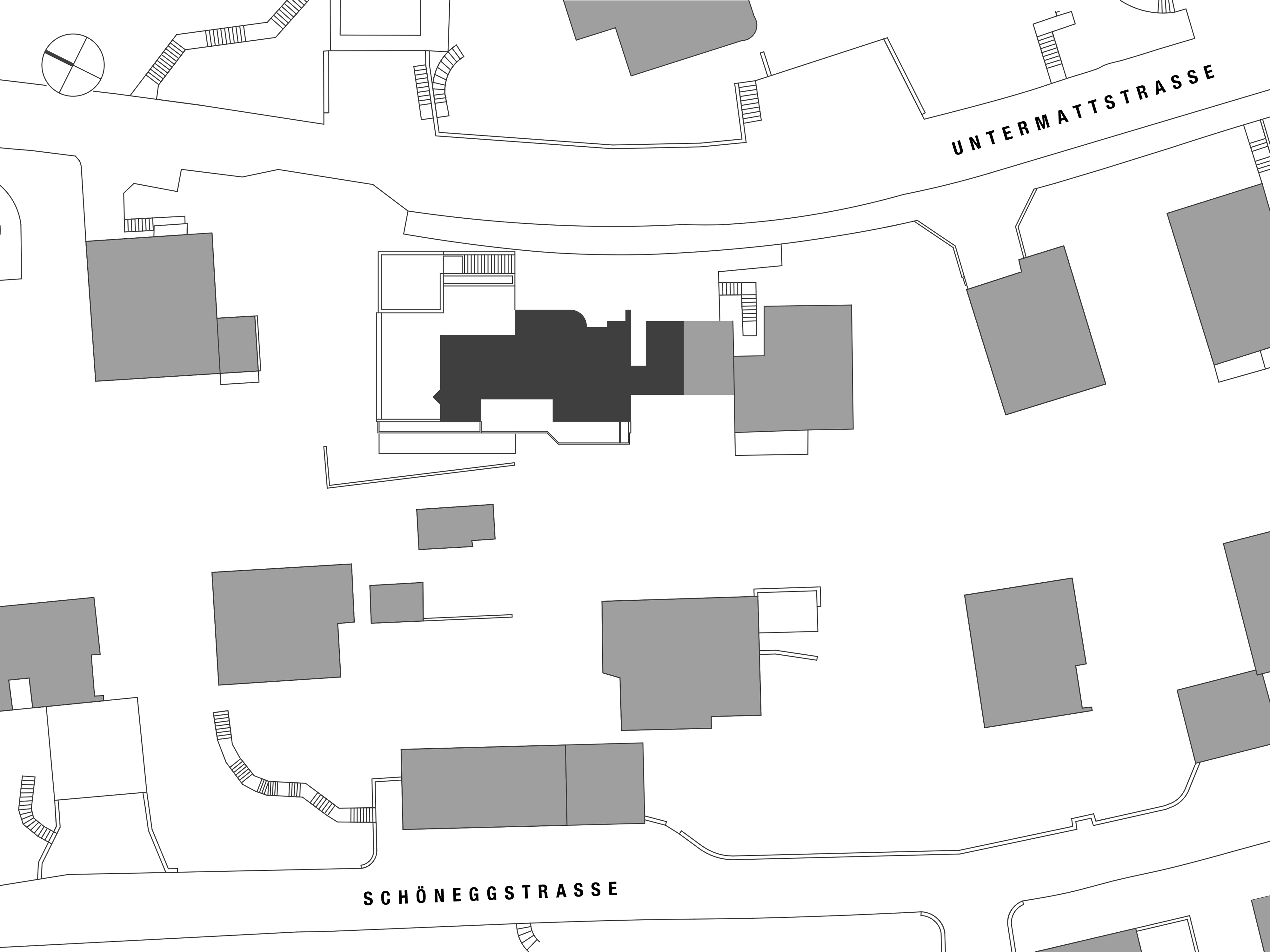
Die Bauherrin wünschte sich eine kleinere Wohnung. Deshalb wollte sie ihr bestehendes Einfamilienhaus am Südwest-Hang über Horw um eine Einliegerwohnung erweitern. Dabei sollten die wundervolle Aussicht auf den Pilatus und die gute Situierung ins Projekt einbezogen werden.

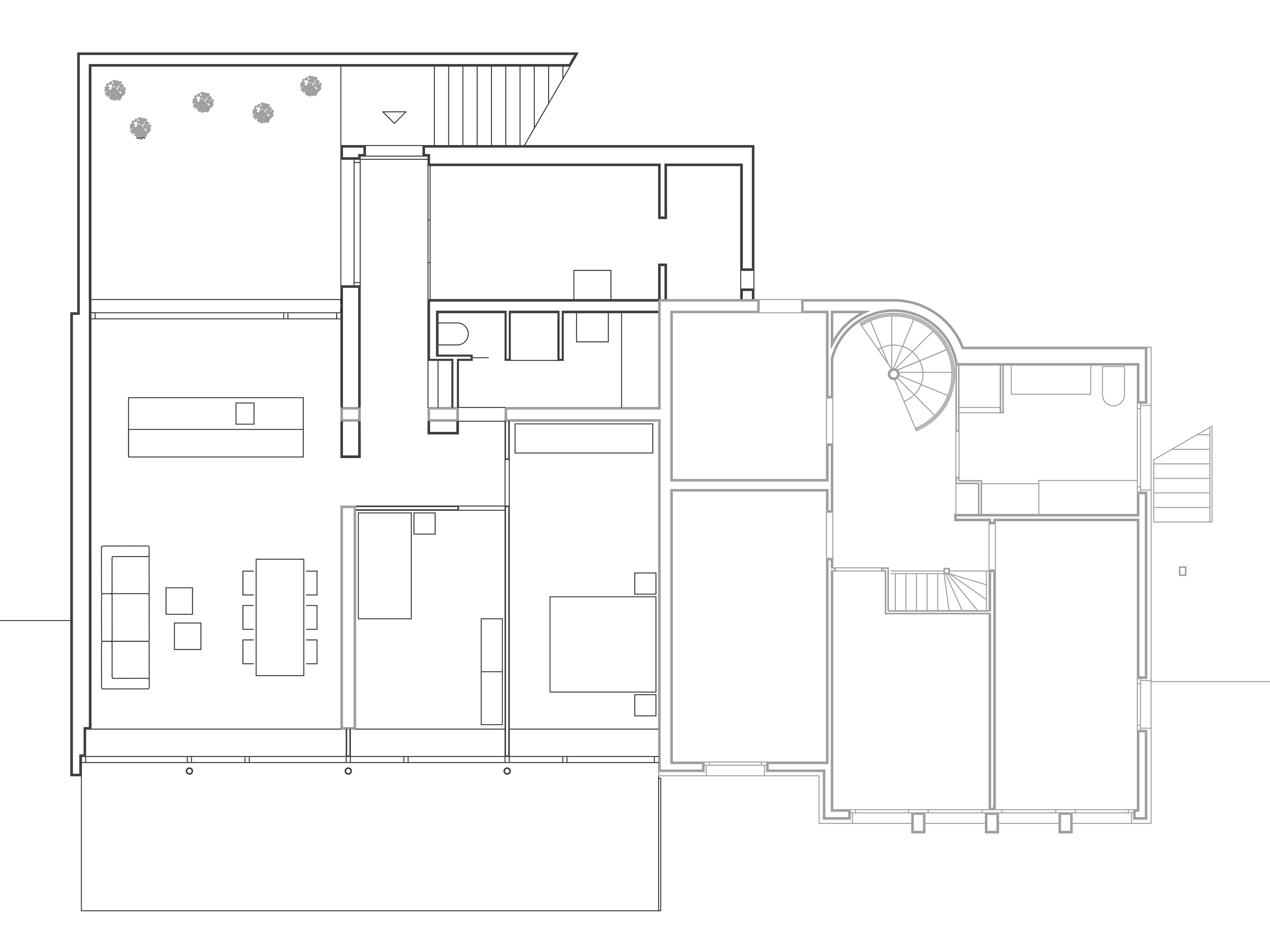
Das bestehende Einfamilienhaus ist von der Hangseite her erschlossen und tritt gegen die Strasse eingeschossig in Erscheinung. Auf dieser Ebene hätte die Einliegerwohung den grosszügigen Aussenraum des Einfamilienhauses verbaut. Sie wurde daher seitlich unter das Einfamilienhaus «geschoben». Dies machte die Wohnungserschliessung zur eigentlichen Herausforderung dieses Projekts.

Mit einer breiten Aussentreppe und einem hangseitigem Atrium erhielt die Wohnung einen eigenen Zugang von der Strasse her. Die Wohnung öffnet sich auf der Hangseite mit raumhohen Fenstern aus der Küche und dem Korridor in das mit bläulich lasiertem Sichtbeton eingefasste Atrium. Es entsteht ein asketischer Raum, unterstützt durch seinen feinen, grauen Rundkies und in der Nacht mit einem Lichtband beleuchtet.

Wände und Möbel aus schwarzem MDF trennen diesen introvertierten Teil der Wohnung von den zur Terrasse hin offenen Räumen. Durch raumhohe Fenster strömt Sonnenlicht und Wärme in die Wohnung und lässt die wundervolle Aussicht zur Geltung kommen. Der hellgraue Bodenbelag begleitet die Bewohnerin durch alle Räume inklusive Terrasse und bindet diese in die Wohnung ein. Die Terrasse schwebt als Platte über Horw und löst dadurch Grenzen zwischen Wohnung und Landschaft auf. Die Materialisierung und Bepflanzung unterstützen den gewünschten architektonischen Ausdruck.

Text: August Keller, Schnieper Keller Architekten

Publikationen

Treppe / Eingang
01 - Treppe / Eingang
Atrium / Küche
02 - Atrium / Küche
Entrée
03 - Entrée
Situation
01 - Situation
Untergeschoss
02 - Untergeschoss
Erdgeschoss
03 - Erdgeschoss
Schnitt
04 - Schnitt
Westfassade
05 - Westfassade