Zum Inhalt springen

Diessenhofen, eine Kleinstadt an der Grenze zu Deutschland gelegen, gehört zum Kanton Thurgau. Richtung Norden ist das Städtchen mit 4000 Einwohnern räumlich durch den mäandrierenden Rhein definiert. In östlicher und westlicher Richtung wird das Gemeindegebiet durch Wald begrenzt.

Der Holz-Neubau, eine Werkhalle mit Büros und Autoeinstellhalle, ist ein Erweiterungsbau, welcher die bestehende Vielfalt von Architektursprachen und Nutzungen ergänzt. Die Baugeschichte der clusterartigen Gebäudestruktur beginnt im Jahr 1881 und entwickelt sich über sieben Etappen bis zum Jahr 1972. Das Areal ist über 7’500 Quadratmeter gross und liegt unmittelbar gegenüber dem Bahnhof Diessenhofen.

Der rechteckige Erweiterungsbau, ab Erdgeschossniveau ein modularer Holzbau, mit einem Fussabdruck von knapp 600 Quadratmeter wird durch eine 60 Quadratmeter grosse, trapezförmige Annex Terrasse ergänzt. Der Zwischenbau mit 200 Quadratmeter Fläche knüpft nordwestlich an das bestehende Gebäude-Cluster an.

Der in Diessenhofen verbaute Holz-Element-Bau sowie alle Stahlträger waren bereits für zwei Jahre in Zürich am Mythenquai für ein temporäres 2-geschossiges Mitarbeiterrestaurant der Swiss Re im Einsatz. Etwas mehr als 2/3 der Elemente, welche in Zürich verbaut wurden, können nun wieder in Diessenhofen verwendet werden als «Second Life Bau». Im Erdgeschoss als Spritzhalle für die bereits ansässige Schreinerei und im Obergeschoss für Büronutzungen.

Der Neubau ersetzt drei alte Holzunterstände, welche der Schreinerei als Holzlager dienten. Der 2-geschossige, wiederverwendete Holz-Modul-Elementbau wurde aus der Vorgabe des Stahlstützenrasters von 6 x 6 Metern den örtlichen Gegebenheiten angepasst, was einem äusseren Gebäudemass von 18 x 30 Meter entspricht.
Die Holz-Fassadenelemente werden an der modularen Stahlstruktur angehängt. Die 6 Meter langen Holzdeckenelemente liegen auf den horizontalen Primär-/ und Sekundär- Stahlträgern. Die Lasten der horizontalen Stahlträger werden über die 24 vertikalen Stahlstützen abgeleitet.

Vier verschiedene Modul-Typen, alle 2 Meter breit und 20 Zentimeter tief, zweiseitig beplankt und ausgeflockt, bilden die Grundstruktur des Holzbaus. Die vier Modultypen unterscheiden sich einzig in ihrer Länge und ihrer Funktion. Das Deckenelement ist 6 Meter lang. Die beiden Geschossfassadenmodule mit einer Höhe von 4 Metern kommen in zwei unterschiedlichen Ausführungen vor. Die erste Variante ist ohne Fenster. Die zweite Variante ist mit Einbaufenster inklusive Lamellenstoren und Fensterbank. Der vierte Modul-Typ ist das Dachrandelement mit einer Höhe von 40 Zentimetern.

Auf dem Flachdach wird eine 30 kWp-Solaranlage betrieben. Neben der üblichen Stromnutzung werden in einem ersten Schritt auch zwei Ladestationen für Elektroautos in der Einstellhalle installiert.

Mit einem neugestalteten Douglasie-Fassadenkleid, welches vorgehängt auf die bestehenden Fassadenmodule angebracht ist, bekommt der Modulbau einen eigenständigen architektonischen Ausdruck mit regionalem Identitätsfaktor. Die 10 und 4.5 Zentimeter breiten und 8.4 Meter langen, vertikal beplankten Holzlatten bedecken nur 72.5 Prozent der Fassadenfläche. Dadurch ist die horizontale Unterkonstruktion, welche in einem Achsabstand von 50 Zentimetern angebracht ist, sichtbar. Das Holz für die stringente, netzartige, dreidimensionale Douglasie-Fassadenstruktur kommt aus dem Bürgerwald in Diessenhofen. Die Bäume wurden gemäss dem Mondkalender am 16. März 2020 gefällt und werden nun über drei Mondphasen getrocknet, was diesem Projekt zusätzliche Qualität und lokale Verbundenheit verleiht.

Publikationen:
2020 – Nüssli Schweiz AG 27. Juli 2020: Zweites Leben für den Holzbaupavillon
2020 – ArchitekturCumulus vom 29. Mai 2020: «Second Life Bau» in Diessenhofen
2020 – Bote von Untersee und Rhein 23. April 2020: Spatenstich mitten in der Corona-Kriese

2. November 2020: Nordwestfassade mit Einfahrt Einstellhalle
01 - 2. November 2020: Nordwestfassade mit Einfahrt Einstellhalle
2. November 2020: Südostfassade
02 - 2. November 2020: Südostfassade
2. November 2020: Südostfassade Detail
03 - 2. November 2020: Südostfassade Detail
2. November 2020: kpm3 Grossraumbüro
04 - 2. November 2020: kpm3 Grossraumbüro
7. Oktober 2020: Südostfassade mit Terrasse
05 - 7. Oktober 2020: Südostfassade mit Terrasse
30. September 2020: Südostfassade mit Terrasse
06 - 30. September 2020: Südostfassade mit Terrasse
22. September 2020: Nordostfassade mit Eingang
07 - 22. September 2020: Nordostfassade mit Eingang
8. September 2020: Nordostfassade mit Terrasse
08 - 8. September 2020: Nordostfassade mit Terrasse
31. August 2020: Nordwestfassade «Douglasie-Holzkleid»
09 - 31. August 2020: Nordwestfassade «Douglasie-Holzkleid»
25. August 2020: Nordwestfassade «Douglasie-Holzkleid» Montage
10 - 25. August 2020: Nordwestfassade «Douglasie-Holzkleid» Montage
18. August 2020: Büro Innenwände Leichtbau
11 - 18. August 2020: Büro Innenwände Leichtbau
11. August 2020: Nordostfassade Eingang Büros
12 - 11. August 2020: Nordostfassade Eingang Büros
6. August 2020: Halle ist aufgerichtet
13 - 6. August 2020: Halle ist aufgerichtet
29. Juli 2020: «Architektur-Selfie» mit Bauherr und Architekten
14 - 29. Juli 2020: «Architektur-Selfie» mit Bauherr und Architekten
21. Juli 2020: montage Fassadenelemente Breite 2 Meter / Höhe 4 Meter
15 - 21. Juli 2020: montage Fassadenelemente Breite 2 Meter / Höhe 4 Meter
15. Juli 2020: Stahlbau EG fertig
16 - 15. Juli 2020: Stahlbau EG fertig
14. Juli 2020: Stahlbaumodule – Breite 6 x Länge 6 x Höhe 4 Meter – werden aufgerichtet
17 - 14. Juli 2020: Stahlbaumodule – Breite 6 x Länge 6 x Höhe 4 Meter – werden aufgerichtet
9. Juli 2020: Decke über UG mit Rampe Einstellhalle
18 - 9. Juli 2020: Decke über UG mit Rampe Einstellhalle
7. Juli 2020: Betonsockel EG fertig
19 - 7. Juli 2020: Betonsockel EG fertig
23. Juni 2020: zweite Etappe Decke über Auto-Einstellhalle mit Aussparung für Treppe
20 - 23. Juni 2020: zweite Etappe Decke über Auto-Einstellhalle mit Aussparung für Treppe
11. Juni 2020: erste Etappe Decke über Auto-Einstellhalle wird betoniert
21 - 11. Juni 2020: erste Etappe Decke über Auto-Einstellhalle wird betoniert
2. Juni 2020: Schalung Decke über Untergeschoss
22 - 2. Juni 2020: Schalung Decke über Untergeschoss
20. Mai 2020: Fundamente für Betonstützen fertig
23 - 20. Mai 2020: Fundamente für Betonstützen fertig
7. Mai 2020: Aushub mit Magerbeton
24 - 7. Mai 2020: Aushub mit Magerbeton
20. April 2020: Spatenstich mit Geri Stolz Keller Bauherrin (links), Oliver Rütimann Unternehmer, August Keller Bauherr und CEO der kpm3 (rechts)
25 - 20. April 2020: Spatenstich mit Geri Stolz Keller Bauherrin (links), Oliver Rütimann Unternehmer, August Keller Bauherr und CEO der kpm3 (rechts)
Situation
01 - Situation
Untergeschoss
02 - Untergeschoss
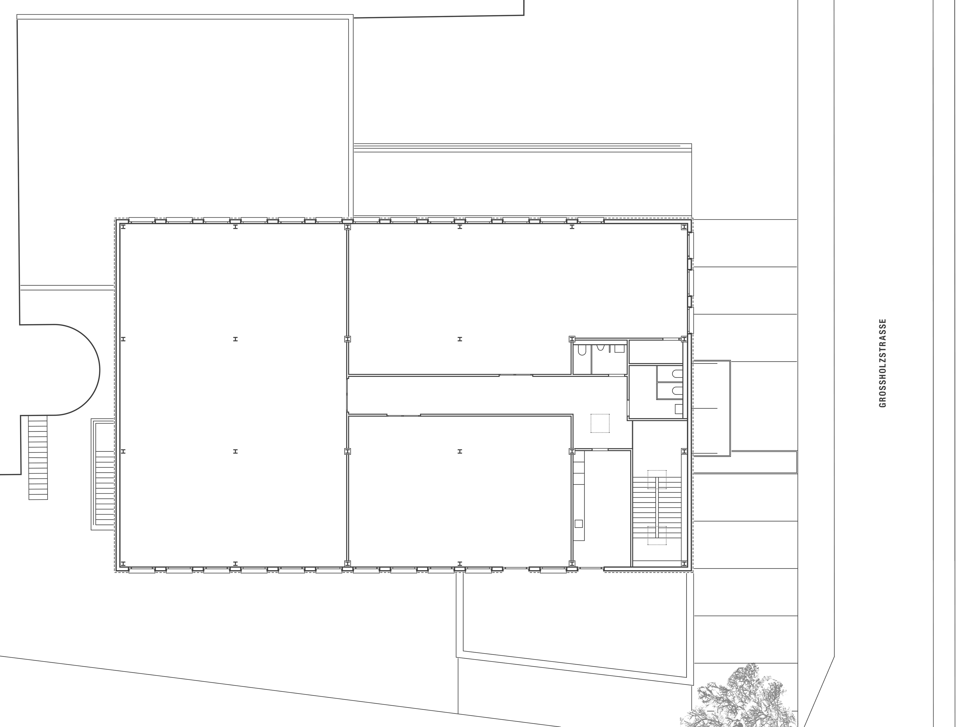
Erdgeschoss
03 - Erdgeschoss
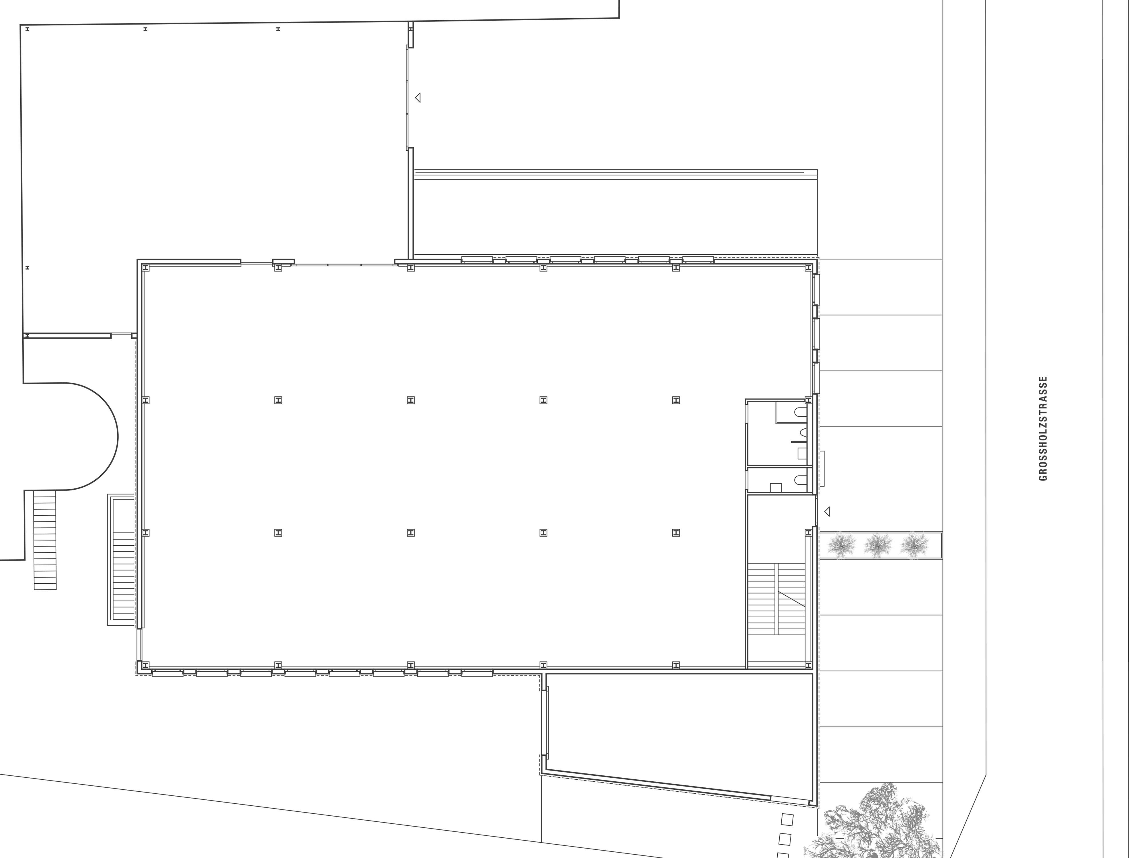
Obergeschoss
04 - Obergeschoss
Längsschnitt
05 - Längsschnitt
Querschnitt
06 - Querschnitt
Nordostfassade
07 - Nordostfassade
Südostfassade
08 - Südostfassade
Nordwestfassade
09 - Nordwestfassade