Zum Inhalt springen

Bericht des Preisgerichtes
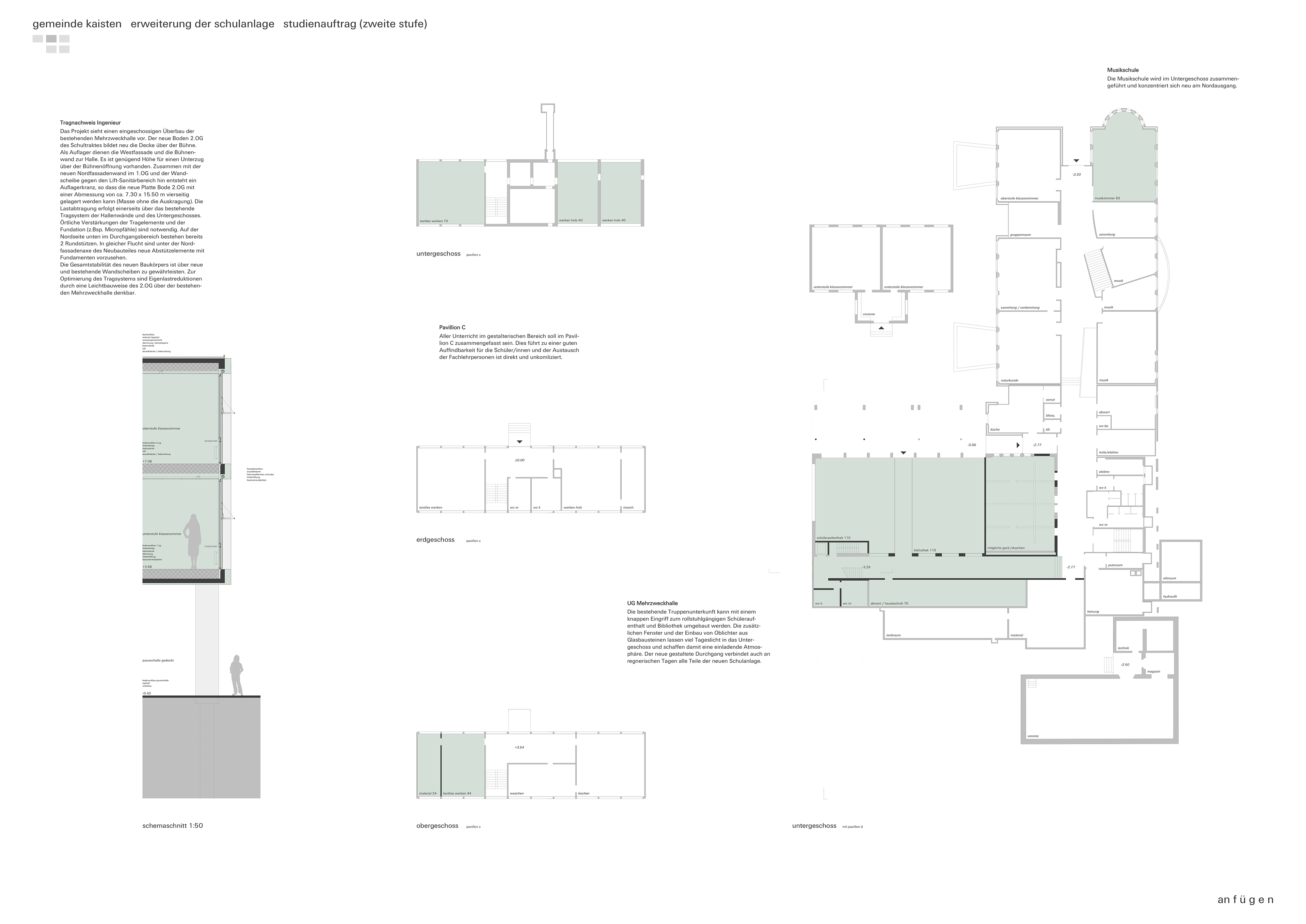
Das Projekt überrascht und überzeugt in der vorgeschlagenen Situierung des Neubauvolumens. Ein klarer Schulhof entsteht, welcher mit der überdachten Pausenhalle zusätzlich aufgewertet wird. Die klare Grundrisstypologie und der innere Aufbau versprechen räumliche Qualitäten. Bibliothek und Schüleraufenthalt sind durch die geschickte Anordnung der Vertikalerschliessung des Neubaus und der Aufwertung des Korridors gut erreichbar.

Leider verstösst das Projekt gegen den Bachabstand und die Uferschutzzone in fahrlässiger Weise, was eine Weiterbearbeitung des Projektes verunmöglicht.

Visualisierung Westfassade
01 - Visualisierung Westfassade
Abgabeplan I
01 - Abgabeplan I
Abgabeplan II
02 - Abgabeplan II
Abgabeplan III
03 - Abgabeplan III
Abgabeplan IV
04 - Abgabeplan IV
Abgabeplan VI
05 - Abgabeplan VI