Zum Inhalt springen

Bericht des Preisgerichtes
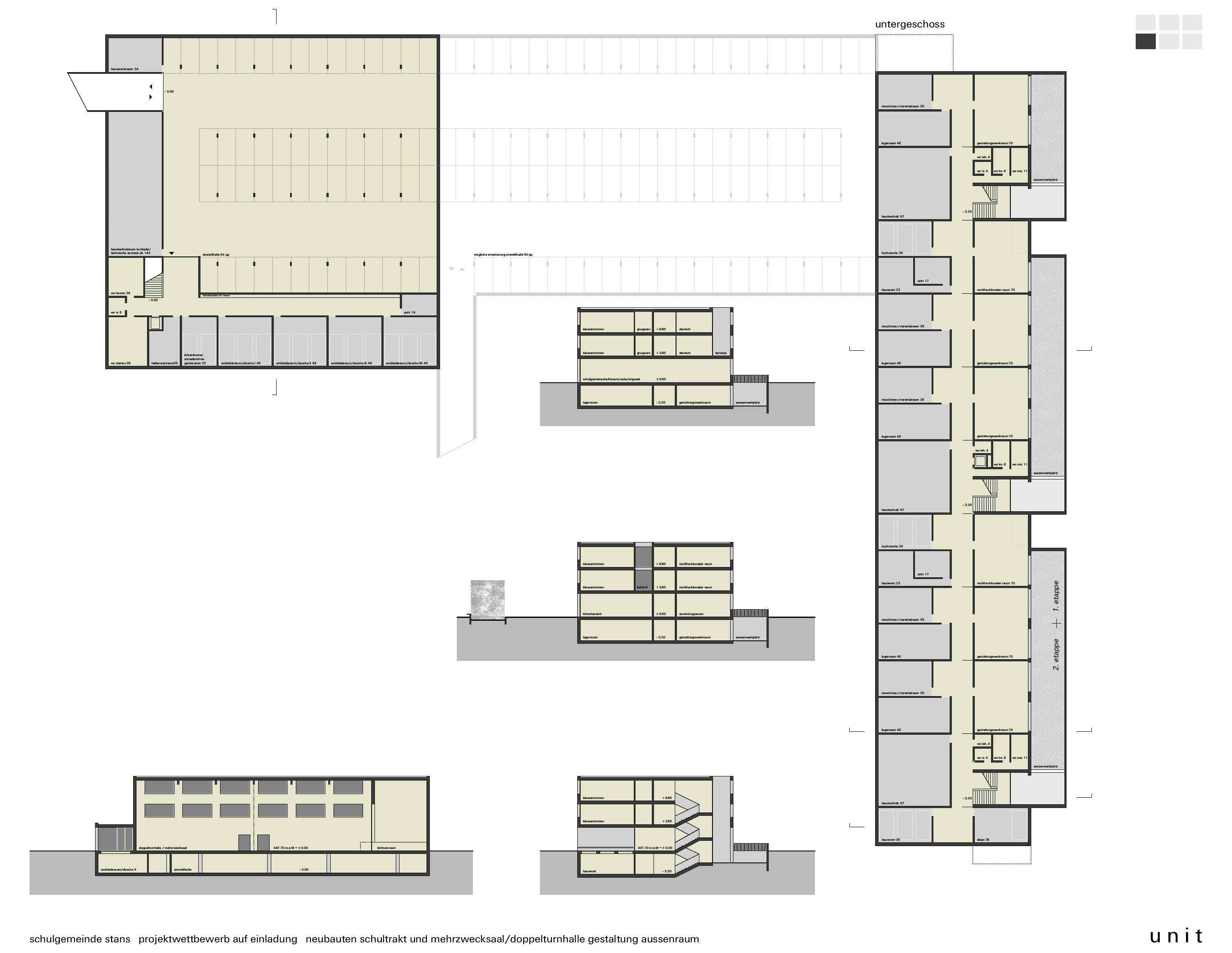
Die Verfasser platzieren den Schulbau als dreigeschossigen Längskörper entlang der nordöstlichen Parzellengrenze. Die Mehrzweckhalle liegt an der Robert Durrer Strasse. Dazwischen spannt sich ein grosser, multifunktional nutzbarer Platz auf, der von markanten Wildhecken gefasst wird. Das Schulhaus verfügt über drei gleichwertige Zugänge mit Treppenhaus, wobei nur der mittlere Erschliessungskern über einen Lift verfügt. Der stirnseitige Erschliessungskern orientiert sich zudem etwas unentschlossen über Eck- das Vordach unterstützt diese ambivalente Haltung noch zusätzlich.
Bauten, Baumvolumen, lineare Heckenelemente und die von ihnen gefasste Freiräume bilden eine wohlproportionierte und gut komponierte Gesamtfigur.
Zentrales Element ist der vielseitig nutzbare Platzraum an richtiger Lage zum Dorf. Artenreiche Wildhecken bestimmen seine räumliche Fassung. Die Hecken sind jeweils leicht abgesenkt und werden über Brücken durchschritten. Der vorgeschlagene Schotterrasen erfüllt zwar den angestrebten Anspruch der Einheitlichkeit, ist aber nicht für alle vorgesehenen Nutzungen tauglich.

Im Untergeschoss liegen die Werkräume gegen Nordosten und sind über einen Graben belichtet. Im Erdgeschoss sind die Räume durchgehend angeordnet, was einerseits zwar eine zweiseitige Belichtung ermöglicht, anderseits aber eine Durchlässigkeit in der Längsrichtung verunmöglicht. Der Kindergarten am Nordwestkopf verfügt über einen eigenen Aussenbereich. In den Obergeschossen liegen die Schulzimmer attraktiv gegen Südwesten, die Nebenräume, Gruppenräume und Multiräume gegen Nordosten. Diese an sich logische Anordnung bringt aber auch eine gewisse Monotonie im Innenbereich mit sich. Zwar sind Lichtschächte vorgesehen, jeweils paarweise bei den Schulzimmervorbereichen angeordnet, aber ihre Abmessung und immergleiche Anordnung unterstützen den eher etwas spannungslosen Gangbereich. Für eine Belichtung des sonst gefangenen Ganges dürften sie wohl etwas zu klein sein. Die Doppelturnhalle verfügt über ein grosszügiges, attraktiv gelegenes Foyer gegen die Strasse und liegt im Erdgeschoss. Sie wird in einer zweiten Etappe als Mehrzweckhalle genutzt und die Doppelturnhalle wird neu an der Nordostseite dazu gebaut.

Die Tiefgarage, die unter der Doppelturnhalle liegt und unter die zweite Etappe des Mehrzweckbaus erweitert werden kann, wird ab der Robert Durrer Strasse erschlossen, was nicht bewilligungsfähig ist, da die Einfahrtsrampe innerhalb der Baulinie zu liegen kommt. Die Arealeinfahrt ab der Bluemattstrasse erfüllt die Verkehrssichereit. Die oberirdische Parkierung liegt an der Strassenecke, der Gemeindeplatz gegen den Schulbau hin. Zusammen erlauben sie eine gute Nutzungsvariabilität.

Der Schulbau der erste Etappe umfasst zwei Treppenkerne mit zweispännig angeordneten Klassenräumen – der dritte Treppenkern wird in der zweiten Etappe südöstlich angebaut.

Betreffend der Geschossflächen und des Volumens liegt das Projekt im Mittel aller Projekte. Seine kompakte Ausbildung lässt auf eine wirtschaftliche Lösung schliessen. Als Gebäudehülle wird eine eingefärbte Sichtbetonfassade vorgeschlagen. Die Holzfenster weisen ein einheitliches Format auf, lediglich das Erdgeschoss wird mit den raumhohen Fenster anders behandelt. Gegen die nordöstlich angrenzende Wohnüberbauung weist das Schulhaus fast den Charakter eines Wohngebäudes auf, gegliedert in sechs aneinandergereihte Abschnitte.

Gesamthaft beurteilt liegen das Schulhaus und die Doppelturnhalle wie selbstverständlich auf dem Perimeter, ohne ihre Umgebung allzustark zu beeinträchtigen. Das Innenleben des Schulhauses ist aber etwas spannungslos. Es werden weder räumliche noch lichtmässig stimulierende Massnahmen getroffen.

Projetwettbewerb: Abgabeplan I
01 - Projetwettbewerb: Abgabeplan I
Projetwettbewerb: Abgabeplan II
02 - Projetwettbewerb: Abgabeplan II
Projetwettbewerb: Abgabeplan III
03 - Projetwettbewerb: Abgabeplan III
Projetwettbewerb: Abgabeplan IV
04 - Projetwettbewerb: Abgabeplan IV
Projetwettbewerb: Abgabeplan V
05 - Projetwettbewerb: Abgabeplan V
Projetwettbewerb: Abgabeplan VI
06 - Projetwettbewerb: Abgabeplan VI
Skizzenqualifikation: Abgabeplan I
07 - Skizzenqualifikation: Abgabeplan I
Skizzenqualifikation: Abgabeplan II
08 - Skizzenqualifikation: Abgabeplan II