Zum Inhalt springen

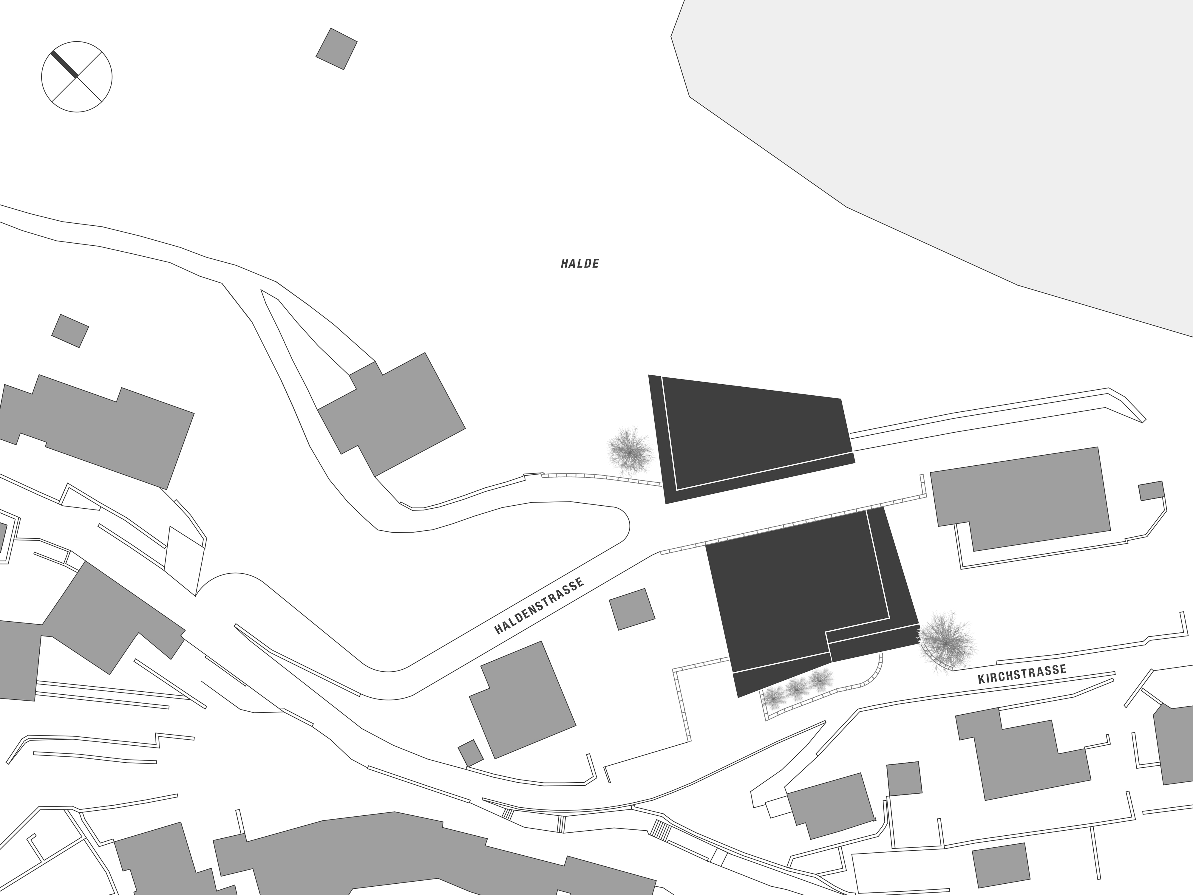
Das zu bebauende Grundstück ist im Gebiet Kirchstrasse und Haldenstrasse situiert und liegt südwestlich der Kernzone von Flüelen mit schöner Aussicht auf See und Berge. Die beiden geplanten Häuser «Haus Kirchstrasse» und «Haus Halde» sollen 21 Meter respektive 35 Meter über dem historischen Dorfkern mit der «Alte Kirche Flüelen» und dem «Schloss Rudenz» zu stehen kommen.

Die zwei Bauten sind aufeinanderfolgend situiert, in relativ steiler Hanglage. Das «Haus Kirchstrasse» ist direkt ab der Kirchstrasse erschlossen. Das «Haus Haldenstrasse» ist ab der Kirchstrasse über eine private Quartierstrasse zu erreichen.

Die beiden Neubauten sollen sich hinsichtlich Situierung, Form und Materialisierung durch eine zurückhaltende Architektur in das bestehende Landschaftsbild einfügen. Die Brüstungsbänder der Fenster und Balkoneinschnitte stehen in einem Verhältnis von 5:8 zueinander, was die talseitigen Hauptfassaden ausgewogen und ruhig erscheinen lässt. Weiter soll ein Sockel aus Natursteinen die beiden Gebäude mit der Umgebung verbinden, die stark durch die Natur geprägt ist.

Haus Kirchstrasse
Die Hauptfassade und somit auch die Hauptausrichtung des neuen «Mehrfamilienhauses Kirchstrasse» folgt gegen Südwesten hin dem Verlauf der Strasse, übernimmt deren Krümmung und schafft so Bezug zum schmalen, ortsprägenden Strassenraum. Die Qualitäten des engen Strassenraums werden durch die Setzung des Gebäudevolumens auf dem abfallenden Hanggrundstück verstärkt und weitergeführt. Präzise platzierte Natursteinmauern im Bereich der Zufahrt zur Einstellhalle und im Hauseingangsbereich verbinden die gewachsene mit der gebauten Umgebung wie ein Anker und Vermittler zwischen Architektur und Landschaft. Das Haus Kirchstrasse ist durch einen drei Meter tiefen Versatz zum Hang über der Einfahrt zur Einstellhalle zweigeteilt, was den viergeschossigen Neubau zurückhaltend gliedert. Die mittig leicht geknickte Fassade wird von verputzten Brüstungsbändern mit 10 cm hohen Betonabdeckungen mit aufgesetztem Handlauf und vertikal verlaufenden verputzten Wandscheiben beschrieben. Dazwischen öffnet sich das Innere des Gebäudes über Glasflächen und eingeschnittene Balkone und gibt so den Ausblick über den See frei.
Die äussere Ordnung des «Hauses Kirchstrasse» definiert sich in der Horizontalen durch Brüstungsbänder, in der Tiefe durch einen Fassadenrücksprung und in der Talfassade durch ein zweiseitig zurückversetztes Attikageschoss.

Haus Haldenstrasse:
Die zwei über Eck laufenden Terrassen der beiden Obergeschosse sowie das Erdgeschoss, das als Natursteinmauerwerk-Sockel geplant ist, bilden von der bestehenden Quartierstrasse aus gesehen den räumlichen Auftakt zum Vorplatz für den «Neubau Halde». Der viergeschossige Bau gibt der bestehenden Strassenkurve durch seine räumliche Präsenz Halt, was weiter verstärkt wird durch die über das Haus hinauslaufende, strassenbegleitende Mauer in Richtung des bestehenden Wohngebäudes im Nordwesten. Das «Haus Halde» steht auf einem massiven Natursteinsockel, der durch die Garagentore sowie den Eingangsbereich geordnet wird. Das Erdgeschoss ist nach Osten gegenüber den Wohngeschossen leicht zurückversetzt, was dem Sockelgeschoss eine zusätzliche Präsenz verleiht. Das Attika ist zweiseitig um drei Meter zurückversetzt; dies trägt talseitig und in nordwestlicher Richtung zu einer zurückhaltenden Silhouette bei. Die horizontale Gliederung durch die durchlaufenden Brüstungen im Bereich der Fenster und Balkone gibt dem Haus eine ruhige Gesamtwirkung.

Die drei Grundmaterialien Putz, Naturstein und das bronzefarbene Aluminium bei Geländer und Abdeckungen bilden die Grundlage der äusseren Materialisierung der beiden Wohnhäuser und nehmen die rohe Umgebung der Berg- und Seelandschaft auf. Die verputzten Wand- und Deckenflächen (beiger Naturton) sind differenziert zwischen abschliessenden Aussenflächen in gedecktem Kratzputz und eingestülpten Flächen wie Leibungen und Balkonuntersichten in glatt strukturiertem Verputz. Der Aussenraum zur Strasse wird von Natursteinmauern gefasst und gestaltet – ein in der Nachbarschaft immer wiederkehrendes Thema. Eingangstür und Fenster sind aussenseitig in einem warmen Bronzeton abgebildet, verbinden sich so mit dem Ausdruck der Staketengeländer sowie der Blechabdeckungen und ergänzen das zurückhaltende, natürliche Materialisierungskonzept zu einem Ganzen.

Neben der differenzierten Gliederung der beiden Häuser, speziell der talseitigen Fassaden, spielt die gut austarierte Materialisierung bezüglich Textur und Farbe für die Erscheinung der beiden Neubauten eine nicht unwesentliche Rolle. Die beiden Häuser sollen das Gebiet Kirchstrasse und Haldenstrasse durch einen zeitgemässen architektonischen Ausdruck massvoll erweitern und aufwerten, ohne bestehende Strukturen zu negieren.

Haldenstrasse: 3D-Skizze
01 - Haldenstrasse: 3D-Skizze
Kirchstrasse: 3D-Skizze
02 - Kirchstrasse: 3D-Skizze
Situation
01 - Situation
Kirchstrasse: Untergeschoss
02 - Kirchstrasse: Untergeschoss
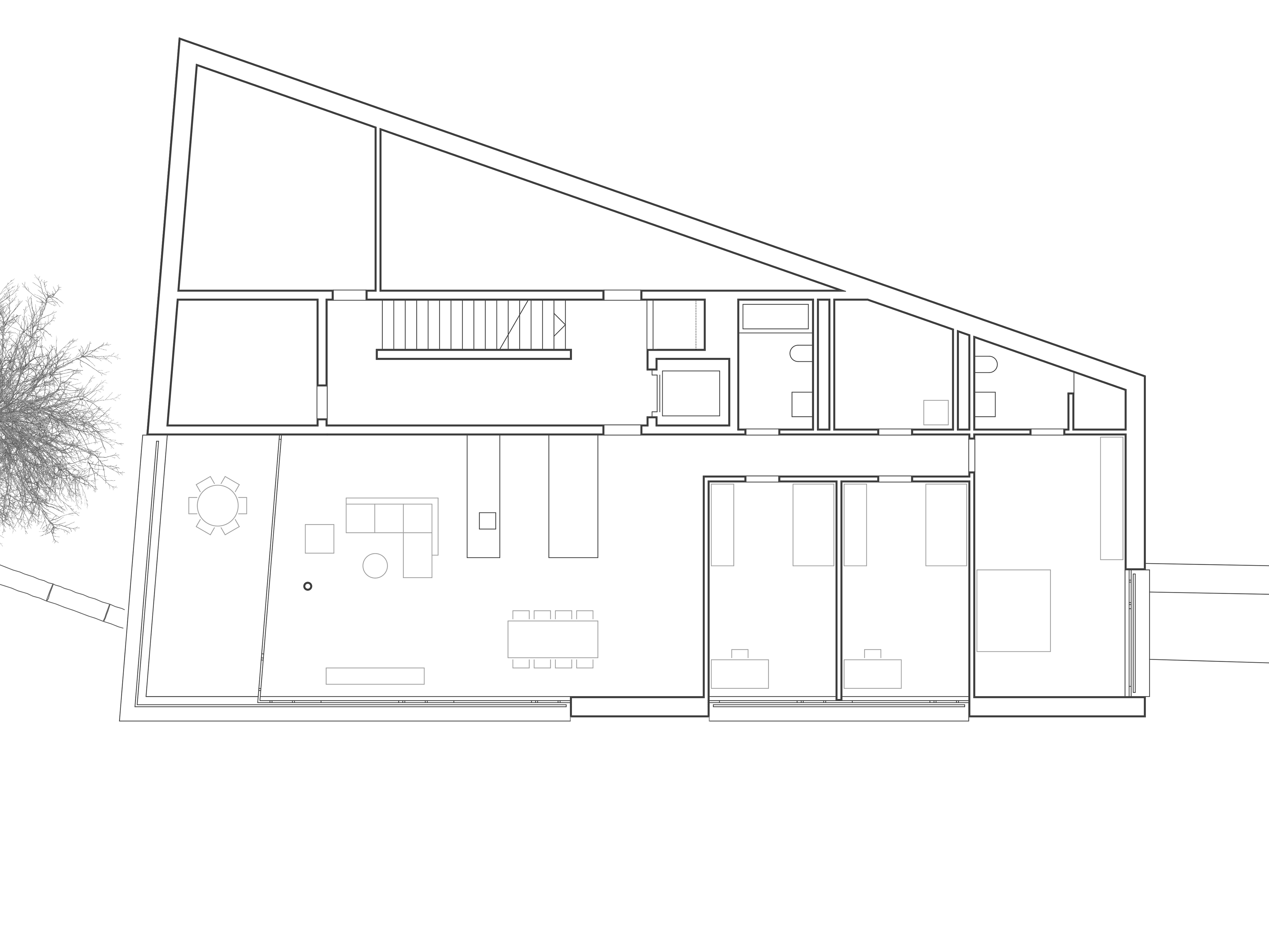
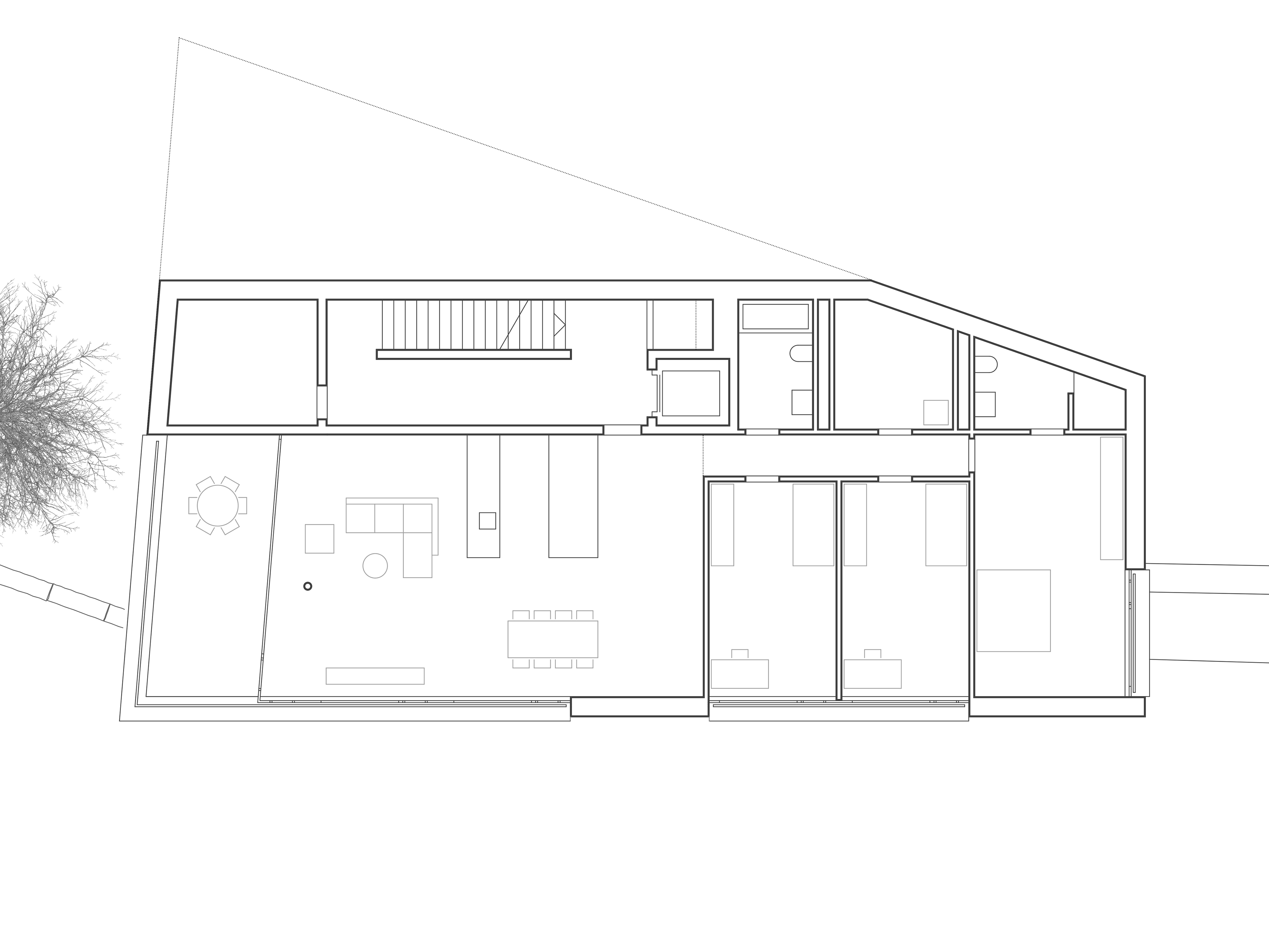
Kirchstrasse: Erdgeschoss
03 - Kirchstrasse: Erdgeschoss
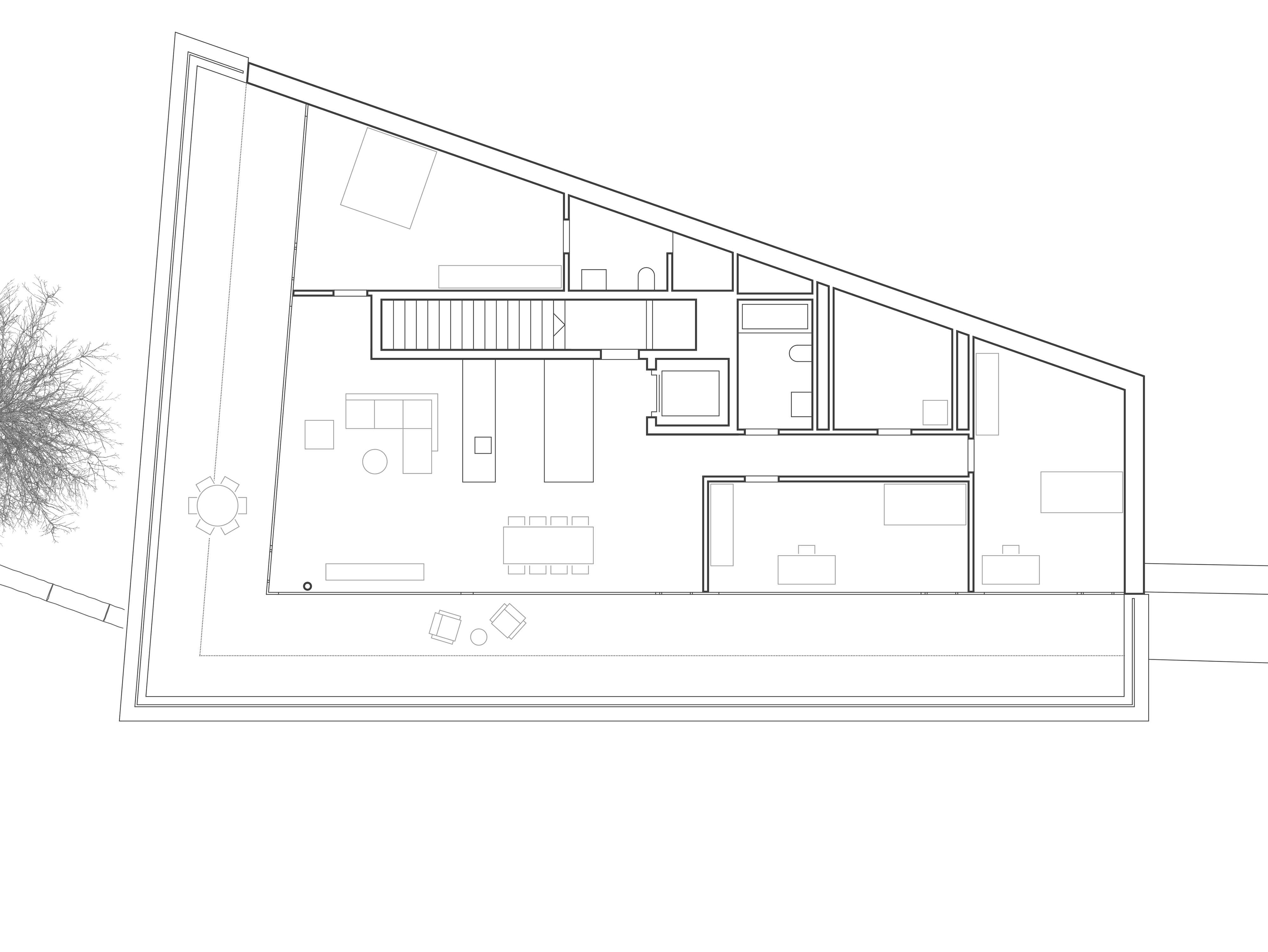
Kirchstrasse: 1. Obergeschoss
04 - Kirchstrasse: 1. Obergeschoss
Kirchstrasse: 2. Obergeschoss
05 - Kirchstrasse: 2. Obergeschoss
Kirchstrasse: Attika
06 - Kirchstrasse: Attika
Kirchstrasse: Schnitt
07 - Kirchstrasse: Schnitt
Kirchstrasse: Südostfassade
08 - Kirchstrasse: Südostfassade
Kirchstrasse: Südwestfassade
09 - Kirchstrasse: Südwestfassade
Kirchstrasse: Nordwestfassade
10 - Kirchstrasse: Nordwestfassade
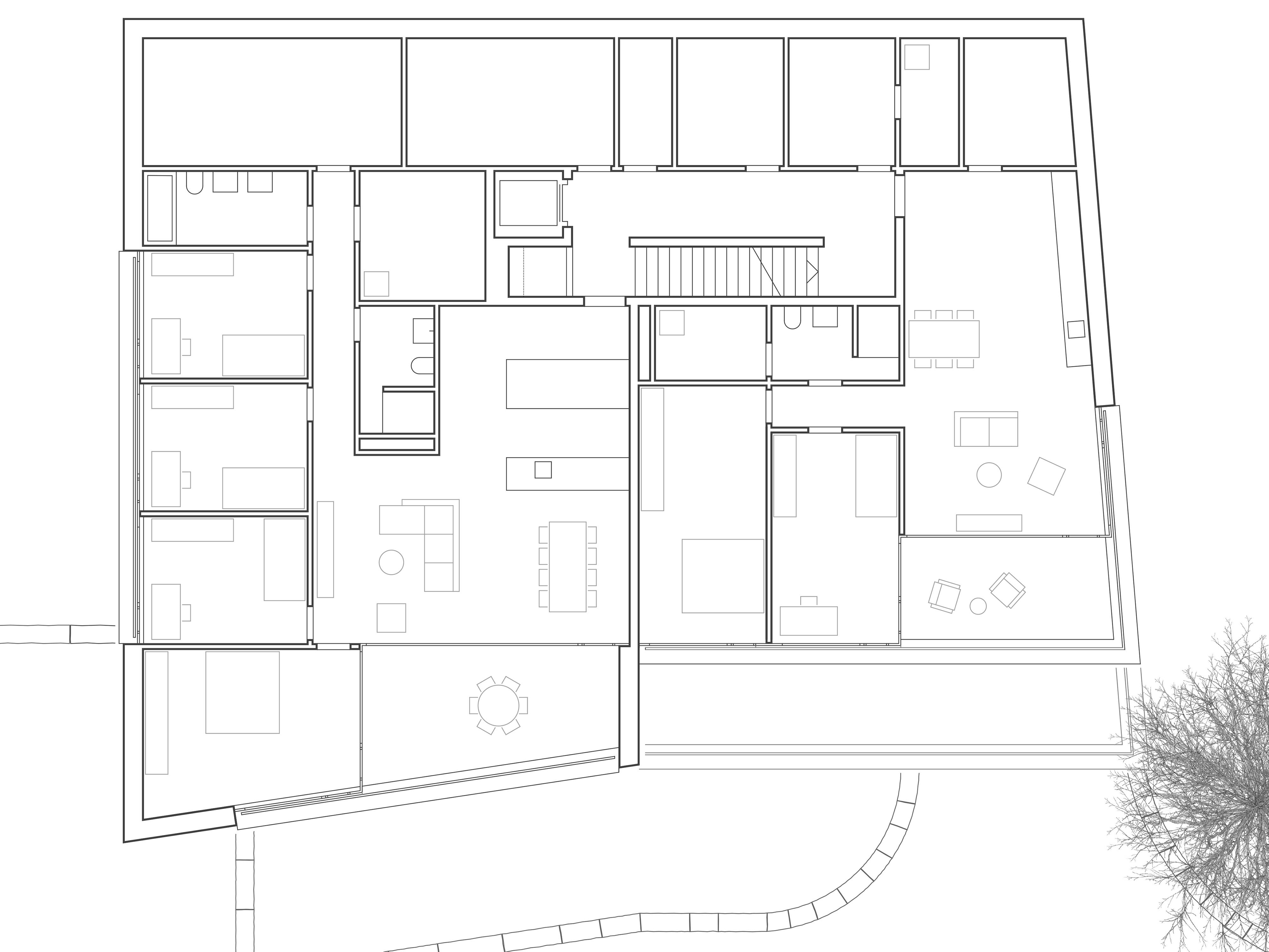
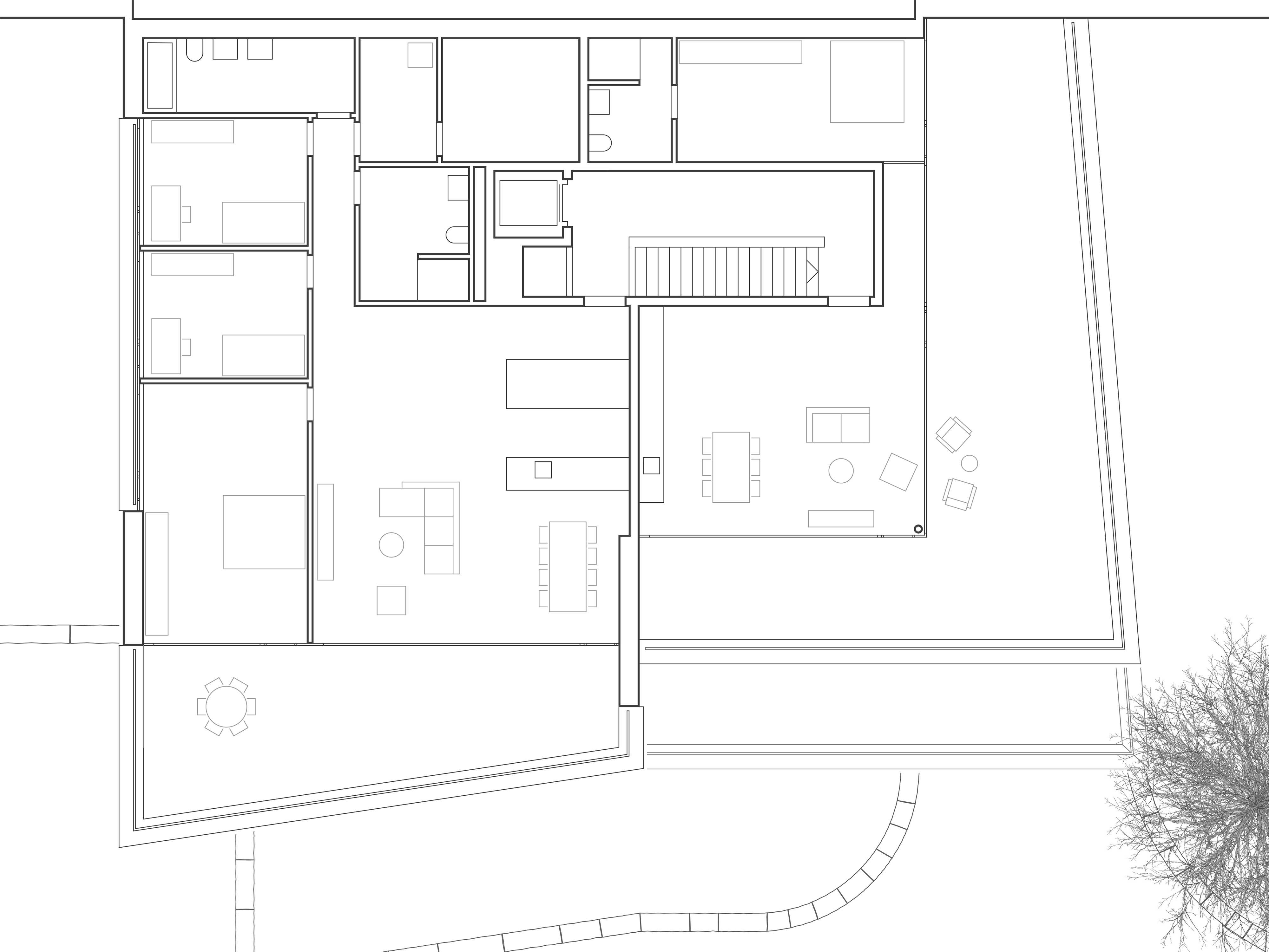
Haldenstrasse: Erdgeschoss
11 - Haldenstrasse: Erdgeschoss
Haldenstrasse: 1. Obergeschoss
12 - Haldenstrasse: 1. Obergeschoss
Haldenstrasse: 2. Obergeschoss
13 - Haldenstrasse: 2. Obergeschoss
Haldenstrasse: Attika
14 - Haldenstrasse: Attika
Haldenstrasse: Schnitt
15 - Haldenstrasse: Schnitt
Haldenstrasse: Südostfassade
16 - Haldenstrasse: Südostfassade
Haldenstrasse: Südwestfassade
17 - Haldenstrasse: Südwestfassade
Haldenstrasse: Nordwestfassade
18 - Haldenstrasse: Nordwestfassade