Zum Inhalt springen

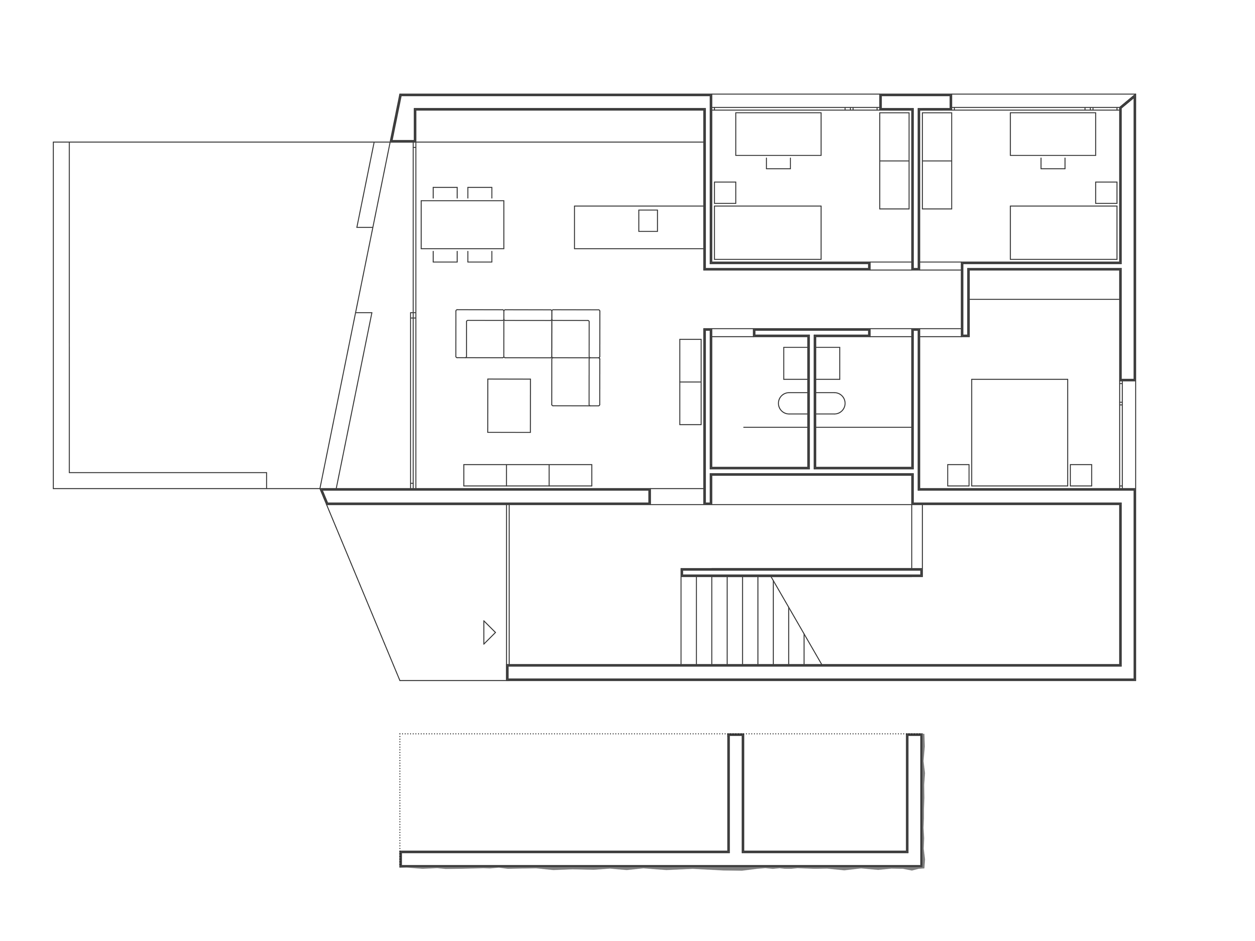
«wohnen vals» ist eine aus drei Familien bestehende einfache Gesellschaft. Diese Heimweh-Valser haben sich den Traum einer eigenen Wohnung in ihrem Heimatdorf erfüllt. Die Parzelle, welche diese Familien erworben haben, liegt am Rande des Dorfzentrums von Vals, das wegen seiner Mineralwasserquelle und Therme bekannt ist. Das schmale, längliche Grundstück, die knappen Grenzabstände und das Raumprogramm mit drei Wohnungen haben das Projekt zu einer Herausforderung gemacht. Die Gebäudeausrichtung nimmt Bezug auf die Nachbargebäude östlich und westlich der Parzelle; es entsteht eine Einheit im Kleinen mit wohlproportionierten Räumen und Durchblicken. Diese Situierung und das dreigeschossige Gebäudevolumen wurden nur dank der Einwilligung der Nachbarn der Bauherrschaft zu einem Näherbaurecht und der aufgeschlossenen Baubewilligungsbehörde möglich.
Die kraftvolle Umgebung mit dem tief eingeschnittenen Tal, die Holzhäuser mit den markanten Steindächern und die Scheunen an den Hängen über dem Dorf waren Ausgangspunkt und Inspiration für das Holzhaus mit Steindach. Die fünfeckige Form des Hauses ist die Folge der Grenzabstände und der konsequenten Umsetzung des Baugesetzes.

Von der Valéestrasse gelangt man über einen mit einer hüfthohen Sichtbetonmauer gefassten Vorplatz zum Haus. Dieses schwebt als Holzkubus mit einer rohen, horizontalen Fassadenschalung aus schmalen Lärchenlatten über einem Betonsockel. Die Aluminiumverkleidungen der Öffnungen – Fenster, Balkone und Eingang – lassen die Fassade zu einer Schicht werden, der «dritten Haut» der Bewohner. Das Dach mit der traditionellen Steindeckung unterstützt die klare Form des Hauses und ist gleichzeitig das verbindende Element zu den umliegenden Bauten. Der Auto- und Velounterstand steht als Solitär neben dem Haus. Seine mit Efeu überwachsenen Aussenseiten bilden einen Kontrast zur harten Sichtbetonoberfläche im Innern. Zwischen den Haupttexturen des Hauses und dem Unterstand entsteht ein anregender Austausch – Holz, Efeu und Sichtbeton.

Der Eingang setzt sich um die Höhe des Betonsockels vom Vorplatz ab. In der raumhohen Eingangsverglasung spiegelt sich die Bergwelt und lässt trotzdem einen zaghaften Blick ins Innere zu. Der orange, glatte Bodenbelag im Treppenhaus begleitet die Bewohner zu den Wohnungen. Dieser halböffentliche Raum erhält entlang der Treppenläufe Zenitlicht und wird mit den massiven Brüstungen zu einer Projektionsfläche für Licht und Schatten. Die eingebauten Garderobenschränke sowie die Zugänge zur Waschküche und zum Technikraum lassen das Treppenhaus zu einem gemeinsam genutzten Wohnraum werden.

Die drei Wohnungen, eine 3-, 4- und 5-Zimmerwohnung, unterscheiden sich in der Materialisierung und der Anordnung der Küchen und Nassräume. Das gemeinsame Element sind die grossflächigen Schiebefenster nach Süden auf dem jeweiligen Balkon. Dieser schmale Aussenbereich verbindet sich bei geöffnetem Fenster mit dem Wohnraum. Dadurch entsteht eine grosszügige, gedeckte Terrasse – ein geschützter Aussenraum in diesem oft rauen Bergklima.

Text: August Keller, Schnieper Keller Architekten

Dorf
01 - Dorf
Valsergranit Dächer
02 - Valsergranit Dächer
Südwestfassade
03 - Südwestfassade
Valser-Rhein
04 - Valser-Rhein
Blaue Stunde I
05 - Blaue Stunde I
Blaue Stunde II
06 - Blaue Stunde II
Blaue Stunde III
07 - Blaue Stunde III
Wohnung EG / Wohnen
08 - Wohnung EG / Wohnen
Wohnung EG / Küche
09 - Wohnung EG / Küche
Wohnung EG / Sitzplatz
10 - Wohnung EG / Sitzplatz

Fotos: Marco Homberger, Luzern †

Situation
01 - Situation
Erdgeschoss
02 - Erdgeschoss
Obergeschoss
03 - Obergeschoss
Dachgeschoss
04 - Dachgeschoss
Schnitt
05 - Schnitt
Südfassade
06 - Südfassade
Westfassade
07 - Westfassade
Nordfassade
08 - Nordfassade