Zum Inhalt springen

Bassersdorf befindet sich zwischen Zürich und Winterthur im Kanton Zürich und blickt auf eine mehr als achthundertjährige Geschichte zurück. Nahe des Stadtkerns, an der östlich verlaufenden Hubstrasse, befindet sich die Liegenschaft unserer Bauherren an prägnanter, städtebaulicher Lage. Der erste Eindruck ist beschrieben vom dicht bewachsenen parkähnlichen Ausdruck des Grundstücks und dem herrschaftlichen Erscheinungsbild der bestehenden Villa mit ortsbild-prägendem Charakter. Der Wunsch nach einem zum Garten geöffneten Pavillon, einem «Wohnzimmer in den Bäumen», erschliesst sich bei näherer Betrachtung der bestehenden Gegebenheiten.

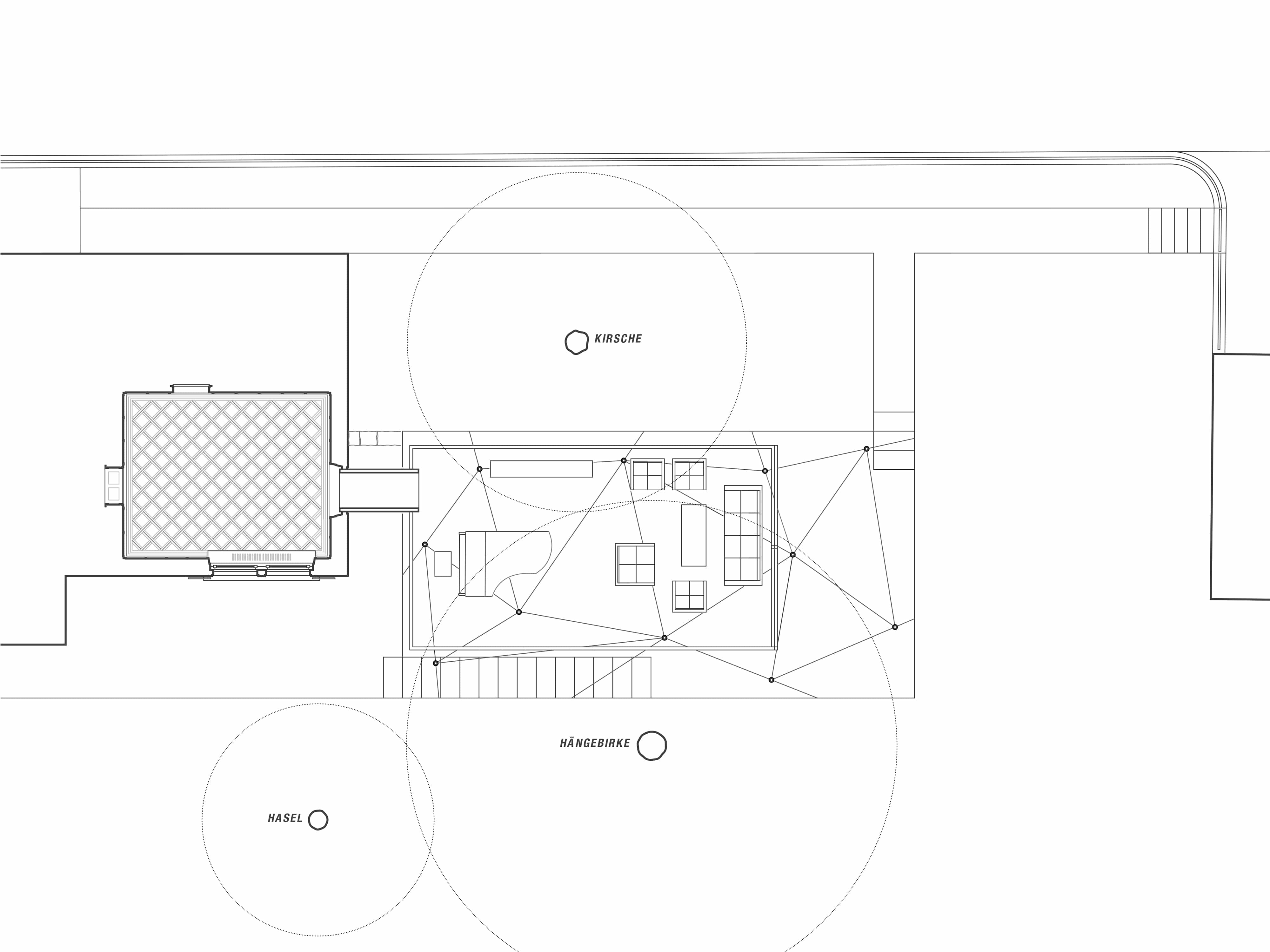
Das circa eintausend Quadratmeter grosse, rechteckige Hanggrundstück orientiert sich mit seiner Längsseite an die bestehende Quartiersstrasse und wird über diese erschlossen. Durch die gegenüberliegende Anordnung des bestehenden Wohnhauses und der Garage an den jeweiligen Querseiten des Grundstücks, spannt sich ein grosszügiger Freiraum auf. Räumlich gefasst wird dieser durch einen beide Gebäude verbindenden Weg. Das opulente Herrschaftshaus ist 1903 im historisierenden Stil erbaut worden und weist eine dem Historismus verschriebene Stilvielfalt und Verspieltheit in der Gestaltung auf. Stark gegliedert und verziert präsentiert sich das dreigeschossige Wohnhaus durch Akroterien und Schleppgauben, durch einen turmartigen Pyramidendachteil und eine Laube, sowie durch ein Walmdach und eine Terrasse. Es weist einen hohen Anteil an ursprünglicher Bausubstanz auf, neben den zuvor beschriebenen Gliederungselementen, einen verglasten Türfang und einen ornamental gestalteten Holz-Pavillon im Garten, welcher von einem beeindruckenden Baumbestand gerahmt ist. Eine Hängebirke mit imponierendem Durchmesser gesellt sich zu einem Kirschbaum und einem einmalig impoant gewachsenem Hasestrauch. Dieser wurde durch den schweizer Baumpfleger Walter Wipfli als besonderes Phänomen in der internationalen Flora herausgestellt. Alle historisierenden Elemente der bestehenden Architektur und der Gartengestaltung fügen sich harmonisch zu einem verwunschenen Ganzen, welches einlädt den Alltag zu vergessen und entdeckt zu werden.

Da sich das bestehende Wohnhaus dem Garten gegenüber eher abschottet als öffnet und die bauliche Substanz als denkmalschützerisch erhaltenswert eingestuft wurde, fiel die Entscheidung für einen pavillonartigen, angegliederten Neubau des «Wohnzimmers in den Bäumen». Der Zugang zum neuen Gartenzimmer erfolgt über den Salon des Bestandsbaus. Innerhalb der bestehenden Fensterproportion und Laibung wurde ein raumhaltiger Steg angegliedert, der den Übergang zum Neubau markiert. Durch das Überwinden zweier Stufen zum dreissig Zentimeter tiefer gelegenen Pavillon wird dieser zusätzlich räumlich betont. Der vollkommen verglaste Raum spannt sich zwischen Deckenscheibe und Betonbodenplatte auf und fügt sich durch die sichtbaren, baumstammähnlichen Stützen, die als Tragwerk fungieren, in die bestehende Baumlandschaft des Gartens ein. Die elf, auf insgesamt siebenundsechzig Quadratmeter frei angeordneten, Stahlstützen im Innen- und Aussenraum, die das sichtbare kronenähnliche Holztragwerk des extensiv begrünten Flachdachs tragen, laufen gestalterisch über Intarsien und Fugen am Boden aus. Wie Wurzeln erstrecken sich die horizontalen hellen Linien im Eichenparkett des Gartenzimmers und den Fugen zwischen den vorgefertigten Betonelementen auf der Terrasse. Diagonale Aussteifungselemente in Form von Dreiecksflächen spannen sich zwischen den Stützen als Knotenpunkte auf.

Die Materialisierung des Garten- und Musikzimmers nimmt in der Art der Gestaltung und in der Auswahl der Werkstoffe Bezug zum bestehenden Herrschaftshaus. So werden die Intarsien des bestehenden Versailler Parketts des Salons neu interpretiert und begründen die «Wurzeln» des Pavillonbodens. Analog dazu sind sichtbare Holzbalken an der Decke kombiniert mit einer zurückhaltend gestalteten weissen Holzdecke, der Krone des Pavillons. Die gläserne Hülle erhält durch umlaufende innenliegende Vorhänge einen Sicht- und Sonnenschutz. Dach wird von einem kupferverkleideten Rand abgeschlossen, dessen Pfalze die Linien der Intarsien und der Betonfugen weiterführen. Die besondere Aufnahme der Linien und des Erscheinungsbildes der Gartenlandschaft innerhalb des Neubaus ist ein Tribut an die bestehende Pflanzenwelt und die damit verbundene Märchenwaldwirkung. Die Öffnung der Pavillonfassade über die umhüllende, rahmenlose Fensterfront ist Garant zum Eintauchen in eine nichtalltägliche, private Landschaftswelt.

Text: Juliane Reuther, Schnieper Architekten

Postkarte 1903
01 - Postkarte 1903
Situation
01 - Situation
Grundriss
02 - Grundriss
Schnitt
03 - Schnitt
Nordwestfassade
04 - Nordwestfassade
Südostfassade
05 - Südostfassade
Südwestfassade
06 - Südwestfassade
Nordostfassade
07 - Nordostfassade